檢閱在預鑄施工圖視圖中對安裝配件加上標註的不同工作流程範例。
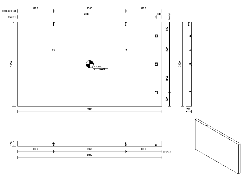
如果安裝配件放在主體的同一側,同一個族群所有安裝配件的標註都會放在一條線上。此放置作業的參考是元素的中心。有相同族群名稱、位於主體中心頂端的所有安裝配件,都會標註在元素的頂端。中心下方的安裝配件則會標註在元素的下方。同樣的規則也適用於垂直標註線。除了安裝配件的標註點 (左側與右側或頂端與底端的一點) 之外,主體範圍的標註點也會放入標註線。



「分段」面板
(分割) 來分割牆。
「連接」面板
(安裝配件) 將錨栓板加入組合中。
「製造」面板
(施工圖) 為組合建立施工圖。

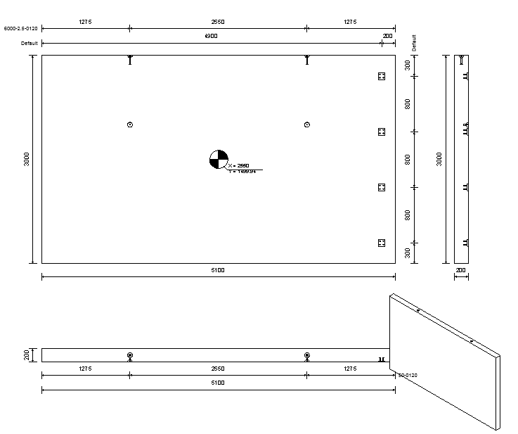
根據子品類的名稱,只有當從上方檢視錨栓板 (如同在族群中所見) 時,才能建立標註線。此範例中的牆則只在前視圖中。


像第一個範例一樣選取子品類和可見性參數。
「分段」面板
(分割) 來分割牆。
「連接」面板
(安裝配件) 將錨栓板加入組合中。
「製造」面板
(施工圖) 為組合建立施工圖。

「製造」面板
(施工圖) 為組合建立施工圖。

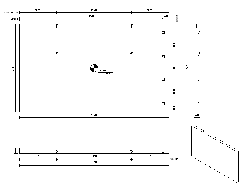
錨栓板的範圍在所有視圖中都會加上標註 (因為都是相同族群,所以使用一個標註)。
在上視圖和前視圖中,只有板片會加上標註 (錨栓不會),因為在這些視圖中,只會看見錨栓的圓形面,因此沒有參考可供標註。


「分段」面板
(分割) 來分割牆。
「製造」面板
(施工圖) 為組合建立施工圖。
