V tomto cvičení budete pracovat v různých podlažích a přidáte do projektu vnější stěny, vnitřní stěny a chodbu.
|
Kategorie
|
Noví uživatelé
|
|
Potřebný čas
|
15 minut
|
|
Použité soubory výukových programů
|
GSG_02_Create_Walls.rvt
|
|
Než začnete, stáhněte si datový soubor GSG_02_Create_Walls.rvt. Stáhněte si tento soubor ZIP (pokud jste ještě nestáhli soubory cvičení pro výukové programy).
Cíle
- Přidat vnější stěny jejich nakreslením pomocí vybraných bodů.
- Přidat vnitřní stěny do spodního podlaží pomocí nástroje Stěna
- Pomocí nástroje Oříznout/prodloužit vytvořit otvor pro chodbu
Zhlédnout video
Úprava vnějších stěn
- Při práci v 3D pohledu vyberte stěny v rozích budovy. Použijte výběr pomocí obsahu okna a držením klávesy CTRL přidejte stěny do výběru.
- Na paletě Vlastnosti vyberte v poli Horní vazba možnost 04 – Horní atika a klikněte na tlačítko Použít.
- Stisknutím klávesy Esc zrušte výběr stěn.
- Vyberte dvě stěny u pravého předního rohu budovy. Na paletě Vlastnosti nastavte možnost Dolní odsazení na hodnotu 4250 mm.
- Pomocí nástroje Výběr typu změňte typ stěny na položku Exteriér – rendrovat na cihle bloku @.
Přidání vnitřních stěn
- V Prohlížeči projektu pod položkou Půdorysy podlaží dvakrát klikněte na položku 01 – Podlaží skladu.
- Klikněte na kartu Architektura
panel Stavět
(Stěna).
- Pomocí nástroje Výběr typu vyberte možnost Interiér, 138 mm příčka (1 h).
- Na panelu Možnosti:
- V poli Výška vyberte možnost 03 Dolní atika.
- V poli Čára umístění vyberte položku Osa stěny.
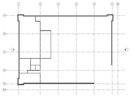
- Podle následujícího obrázku umístěte vnitřní stěny, kterými vytvoříte místnosti:
- Přesné umístění není důležité.
- Při tvorbě rozvržení stěn může být užitečné povolit nebo zakázat možnost Řetězit. Možnost Řetězit umožňuje umístění více stěn dotýkajících se konci. Pokud je možnost Řetězit zakázána, je nutné určit oba koncové body každé stěny. Experimentujte s oběma nastaveními.
- Úpravou stěn vytvořte chodbu:
- Kliknutím na položku
(Upravit) dokončete příkaz.
Část 3: Vytvoření terénu a desky