Pomocí šablon pohledů můžete rychleji a konzistentněji používat přepsání viditelnosti a zobrazení na pohledy. Revit

Šablony pohledů umožňují rychle použít mnoho vlastností viditelnosti a zobrazení na pohled najednou. Nastavení šablon pohledů jsou spravována na úrovni projektu. Díky používání šablon pohledů je snazší zajistit konzistentní pohledy modelu. Když se stejná šablona pohledu použije na více pohledů, budou pohledy vypadat stejně.
Potřebujete například půdorysy podlaží pro sadu stavební dokumentace a chcete, aby všechny půdorysy podlaží měly stejný vzhled. Vytvořte šablonu pohledu, která má všechna přepsání viditelnosti a zobrazení potřebná pro stavební dokumentaci, a použijte ji na půdorysné pohledy podlaží použité pro stavební dokumentaci. Pokud se požadavky na viditelnost změní, proveďte změnu v přiřazené šabloně pohledu a všechny půdorysy podlaží ve stavební dokumentaci budou aktualizovány.

. Třemi hlavními nástroji jsou následující příkazy:
Použít vlastnosti šablony na aktuální pohled – Vyberte šablonu a použijte její nastavení viditelnosti na aktuální pohled.
Vytvořit šablonu z aktuálního pohledu – Použijte nastavení viditelnosti a zobrazení v aktuálním pohledu k vytvoření šablony pohledu. To je dobrý způsob, jak začít tvorbu šablony. Změňte vlastnosti pohledu tak, aby se zobrazil požadovaným způsobem. Poté z pohledu vytvořte šablonu, kterou můžete přiřadit k jiným pohledům modelu.
Spravovat šablony pohledu – Otevře dialog, ve kterém máte přístup ke všem šablonám pohledů v modelu a v němž můžete provádět změny nastavení vlastností pohledů jednotlivých šablon. Z tohoto dialogu můžete vytvořit nové šablony pohledů.
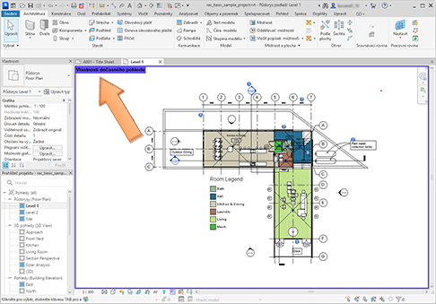
Na paletě Vlastnosti použijte vlastnost Šablona pohledu k přiřazení šablony pohledu k aktuálnímu pohledu. Když přiřadíte šablonu pohledu tímto způsobem, budou dostupné pouze šablony, které lze přiřadit k aktuálnímu typu pohledu. Ostatní šablony pohledů v modelu nebudou uvedeny.
Informace o používání šablony pohledu najdete v následujícím videofilmu:
Když v projektech začínáte používat šablony pohledů, nejprve vytvořte několik šablon pohledů pro různé případy použití. Můžete například vytvořit šablony pohledů pro pohledy prezentace, pohled stavební dokumentace a pohledy koordinace. Až budete mít tyto šablony pohledů vytvořené, přiřaďte je podle potřeby k jednotlivým pohledům. Připravenost šablony pro každé použití usnadňuje sestavování pohledů podle potřeby a každý pohled se zobrazí konzistentním způsobem.


Zahrňte šablony pohledů do šablon projektu. Šablony pohledů lze přenášet z jednoho projektu do jiného pomocí nástroje pro přenos projektových standardů. Šablony pohledů můžete dále vytvářet a potom je podle potřeby přenášet z jednoho projektu do jiného, aby byla zajištěna konzistence pohledů v celé vaší organizaci.
Šablony pohledů řídí mnoho aspektů vzhledu pohledu. Do šablony pohledu lze zahrnout i další aspekty, například měřítko, stíny nebo stav fáze. Všechny vlastnosti pohledu řízené šablonou pohledu se zobrazují v pravé části dialogu Vlastnosti pohledu. Při tvorbě šablon pohledů zkontrolujte všechny řízené aspekty pohledu, abyste mohli šablony pohledů využít na maximum.
![]() |
![]() |