LiveView-Übung: Zusammenführen von Vektoren

In dieser Übung aktualisieren Sie eine Zeichnung und führen neue Vektordaten mit vorhandenen Rasterdaten zusammen.

Anmerkung: Die Beispieldateien für das Erste-Schritte-Handbuch können unter https://www.autodesk.com/raster_design_getting_started_guide heruntergeladen werden. Laden Sie die Beispieldateien herunter und extrahieren Sie sie auf Ihrer Arbeitsstation, um sie in dieser Übung zu verwenden.
So führen Sie Vektor- mit Rasterdaten zusammen
1

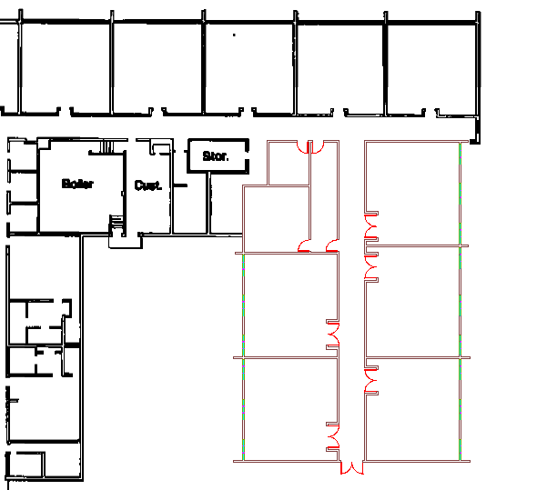
Öffnen Sie die Beispieldatei LiveView_Merge.dwg.

Sie sehen die Zeichnung einer Schule. Die weißen Rasterdaten geben das ursprüngliche Gebäude und die farbigen Vektordaten die zusätzlichen Klassenzimmer an.

2 Klicken Sie in der Multifunktionsleiste auf die Registerkarte Rasterwerkzeuge Gruppe Bearbeiten (erweitert) Rasterstift, um das Dialogfeld Rasterstifteinstellungen zu öffnen.
3

Wählen Sie die rote Stiftfarbe, legen Sie die Stiftbreite auf 1 Pixel fest, und klicken Sie auf OK.

Bei dieser Einstellung werden die Türen mit dünneren Rasterlinien gezeichnet als die Wände.

4

Klicken Sie in der Multifunktionsleiste auf die Registerkarte Rasterwerkzeuge Gruppe Bearbeiten (erweitert) Vektor zusammenführen. Wählen Sie die Objekte, aus denen die neuen Klassenräume bestehen, indem Sie ein Fenster um sie ziehen, und wählen Sie den Rahmen des Rasterbilds aus. Klicken Sie dann mit der rechten Maustaste, um die Auswahl zu beenden.

Anmerkung: Wenn Sie den Rahmen des Rasterbilds nicht auswählen können, klicken Sie auf die Registerkarte Rasterwerkzeuge Gruppe Verwalten und Anzeigen Rahmen ein-/ausblenden.

Drücken Sie die Eingabetaste, um die Vorgabeeinstellung zum Löschen der Vektoren nach dem Zusammenführen zu übernehmen. Wenn Sie gefragt werden, ob Sie fortfahren möchten, klicken Sie auf Ja.

Die Vektordaten werden mit den Rasterdaten zusammengeführt.