Dialogfeld Bemaßungs-Ansicht

Verwenden Sie diesen Dialog, um:

Ansicht – Wählen Sie die Ansicht aus der Liste aus, oder klicken Sie in die gewünschte Ansicht in der Zeichnung.

Gesamtbemaßungen – Wählen Sie diese Option, um die X- und Y-Bemaßungen im Element in der ausgewählten Ansicht anzuzeigen, wenn die Bemaßungen nicht bereits vorhanden sind.

Bohrungen:

Ursprung – Der Ursprung ist vorgabemäßig auf den Ansichtsursprung festgelegt. Wenn Sie den Ursprung ändern, wird der Ansichtsursprung auf die neue Position aktualisiert. Der Ursprung wird durch Mittellinien markiert.

So ändern Sie den Ursprungs

Geben Sie die X Y Z-Koordinaten ein, oder klicken Sie auf die Schaltfläche Position , um das Dialogfeld Position zu öffnen, wo Sie Positionseingabe-Werkzeuge verwenden können.

Layout – Sie können das Layout für den Text der Ordinatenbemaßungen an den folgenden Positionen wählen:

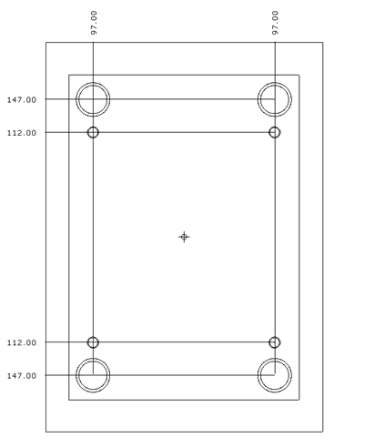
Im folgenden Beispiel für eine Ansicht wird das Layout von Bohrungsbemaßungen mithilfe der Layoutoption Oben links angezeigt.

Bemaßungen auf der nächstgelegenen Modellseite positionieren – Wählen Sie diese Option, um den Bemaßungstext auf der Seite zu positionieren, die dem Zentrum der Bohrung am nächsten liegt. Dies ist hilfreich bei Platten mit Hunderten von Bohrungen, weil dadurch die Klarheit der Zeichnung verbessert wird.

Wählen Sie die Option ab, um alle Bemaßungen auf einer Seite zu positionieren. Die Position des Bemaßungstexts wird durch die Auswahl von Oben links, Oben rechts, Unten links oder Unten rechts festgelegt.

Bohrungsrichtung – Wählen Sie, welche Bohrungen bemaßt werden sollen:

Vorgebohrte Bohrungen bemaßen – Wählen Sie diese Option, um zuzulassen, dass Platten mit vorgebohrten Bohrungen bemaßt werden.

Bei nahe beieinander liegenden Bemaßungen werden die Bemaßungslinien automatisch abgeknickt gezeichnet, um Überlappungen zu verhindern.