Sie können die Rohrsystem-, Apparate- und Stahl-Stückliste sowie Stutzen- und Verbindungsrohrlisten in orthogonale Zeichnungen einfügen.

Sie können eine Stücklistentabelle für Rohrsysteme, Apparate und Stahl sowie Stutzen- und Verbindungsrohrlisten in orthogonale Zeichnungen einfügen.

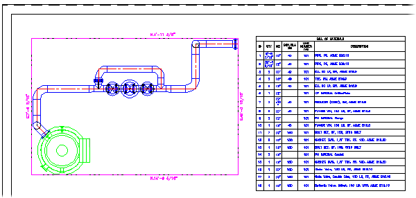
Die Stücklistentabelle enthält die Elemente der Ortho-Ansicht.
Sie können die Rohrsystem-, Apparate- und Stahl-Stückliste in orthogonalen Zeichnungen platzieren. Darüber hinaus können Sie die Komponenten und Eigenschaften auswählen, die in der Stückliste angezeigt werden sollen. Komponenten werden in einer Zeile gruppiert und können nach ihren Eigenschaften sortiert werden.

Sie können auch die Langbezeichnung (Familie), Langbezeichnung (Größe) oder benutzerdefinierte Beschreibung in der Stückliste anzeigen.

Sie können Stutzen- und Verbindungsrohrlisten in orthogonalen Zeichnungen platzieren und auswählen, welche Eigenschaften in der Liste angezeigt werden sollen.


Orthogonale Einstellungen, einschließlich neuer Einstellungen für Stücklistentabellen, werden im Projektordner Orthos\Styles gespeichert. Sie können diese Einstellungen freigeben, indem Sie den Stilordner in ein anderes Projekt kopieren.
Die Einrichtung von Ortho-Stücklisten ähnelt bezüglich Tabellenspalten und Gruppierung der Einrichtung von isometrischen Stücklisten. Wie bei einer ISO-Stückliste kann die Tabelleneinrichtung mit dem Schriftfeld gespeichert werden.
Im Gegensatz zu ISO-Stücklisten werden Zeichen- und Tabellenbereiche nicht unterstützt.

Administratoren können die Vorgabe-Stückliste für ein Projekt festlegen.
Bei der Projekteinrichtung können Sie die Stücklistentabelle im orthogonalen Schriftfeld einrichten. Wenn Sie eine Vorlage für eine Stücklistentabelle (leere Tabelle) im Schriftfeld platzieren, enthalten neue orthogonale Zeichnungen keine Aufforderungen für Position oder Größe.

In AutoCAD Plant 3D 2015 und höher können Sie eine Stücklistentabelle für eine orthogonale Ansicht erstellen. Rohrleitungen und Rohrhalterungen werden in der Ortho-Stücklistentabelle aufgeführt.