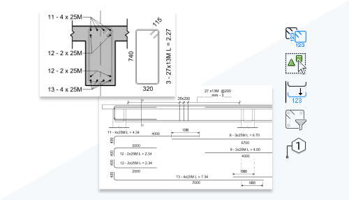
Fügen Sie Biegeformauszüge zu Ihren Bewehrungszeichnungen hinzu, um genaue Stabbiegungs- und -installationsanweisungen zu erstellen.
Sie können Biegeformauszüge in Draufsichten, Schnittansichten und Ansichten innerhalb oder außerhalb des Zuschneidebereichs der Ansicht platzieren, indem Sie die entsprechenden Werkzeuge in der Multifunktionsleiste verwenden. Ändern Sie die Parameter für die Biegeformauszüge der Bewehrung, damit diese optimal Ihren Anforderungen für Bewehrungszeichnungen entsprechen.

Diese Funktion wurde von Kunden im Ideas-Forum vorgeschlagen und wird im Produktüberblick beschrieben.
Weitere Informationen finden Sie unter Biegeformauszüge der Bewehrung in Bewehrungszeichnungen.