Video: Adjust a Perspective View
Adjust a perspective view after it has been created using one of three methods, direct manipulation, use the SteeringWheel, or use Fly Mode .
Video: Work in a Perspective View
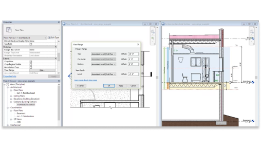
When working in a 3D orthographic or perspective view, you can add and modify building elements to develop and refine the design.
Video: Filter a Schedule by Sheet
In this tutorial, you will learn how to filter elements in a schedule based on the views placed on the same sheet as the schedule.
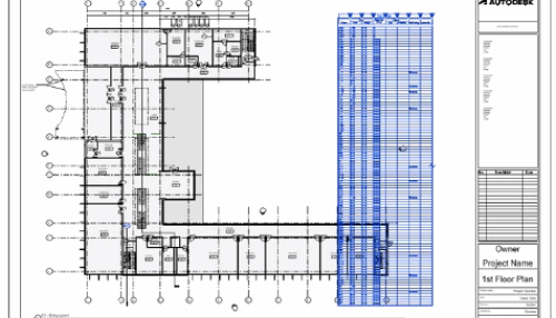
Video: Calculate Totals in a Schedule
When creating a schedule, calculate and display amounts and total element costs or a grand total cost of all elements.
Video: Create an Embedded Schedule
Use embedded schedules to display information about the components in rooms, spaces, duct systems, piping systems, or electrical circuits categories.
Video: Combine Parameters in a Schedule
When creating or modifying a schedule, combine two or more parameters in a single schedule cell using the Schedule Properties dialog.
Video: Create a Note Block
Add a note block (annotation schedule) to create generic numbered sheets of notes in a model.
Video: Customize Panel Schedule Templates
Manage schedule panel templates to create customized panel schedules that comply with your company standards and local codes.
Video: Export a Walkthrough Animation
To present the model to clients or team members, export a walkthrough to a video (AVI file) or to a series of images.
Video: Customize DWG Export Setups
Customize export options for DWG files to collaborate with team members using different software types.