Consulte los cálculos adicionales para los apoyos de viga mediante el método de puntal y tirante según el anexo francés NF EN 1992-1-1 / NA:2016.
Hipótesis:


Nota de resultado de viga
(Armadura proporcionada de elementos RC).

Descripción de las variables:
VEd: el esfuerzo cortante cercano al apoyo.
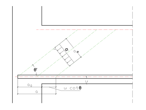
aσ: la anchura de las diagonales.
a: longitud de la base de la diagonal (observe la imagen anterior).
σRd.max: la resistencia de cálculo de una diagonal de hormigón.
σEd = σ1: el valor de la tensión de compresión en la diagonal.
FcEd: el esfuerzo de compresión soportado por la diagonal de hormigón.
FtEd: el esfuerzo de tracción soportado por el acero.
Δ As.req: armadura teórica adicional.
As.prov: armadura real total.
As.prov ≥ Δ As.req
Para visualizar armaduras adicionales en la figura, abra la ficha Viga - diagramas, debajo del conjunto de tablas Pasar en: armadura.
Se intentará crear una diagonal adicional por encima del saliente si se supera la tensión de compresión máxima en las diagonales principales (marcadas en la imagen como A-B-C-D).

Para construir este elemento, es necesario diseñar una armadura horizontal adicional. Su objetivo principal es soportar las cargas de tracción.
El ángulo de la nueva diagonal de compresión se marca como θ' y su dimensión máxima se determina mediante la distancia entre los puntos D y E.
Si se supera la resistencia de cálculo de una diagonal de hormigón principal, se presupone que este elemento mantiene la fuerza máxima aceptable y que las cargas adicionales las soporta la diagonal recién creada.
Hipótesis adicional: la dimensión mínima de la diagonal debe ser igual o mayor que 5 cm.