Consulte diferentes ejemplos de flujo de trabajo de acotación de piezas de montaje en vistas de dibujos de detalles de prefabricado.
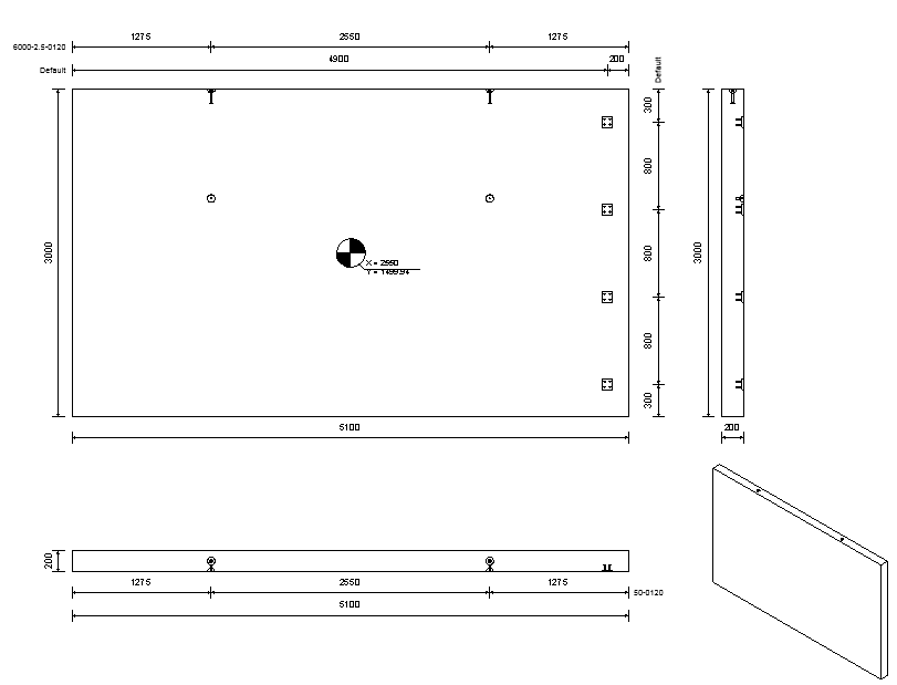
Las cotas de todas las piezas de montaje de la misma familia se colocarán en una línea si las piezas de montaje se han colocado en el mismo lado del anfitrión. La referencia de esta colocación es el centro del elemento. Todas las piezas de montaje con el mismo nombre de familia que se encuentren sobre el centro del anfitrión se acotarán sobre el elemento. Las piezas de montaje que se encuentren por debajo del centro se acotarán debajo del elemento. La misma regla se aplica a las líneas de cota verticales. Los puntos de cota en las extensiones del anfitrión se añaden a la línea de cota, además de los puntos de cota de las piezas de montaje (un punto a izquierda y derecha o arriba y abajo).



grupo Segmentación
(Dividir) para dividir el muro.
grupo Conexiones
(Piezas de montaje) para añadir las pletinas de anclaje al montaje.
grupo Fabricación
(Dibujos de detalles) para crear un dibujo de detalles para el montaje.

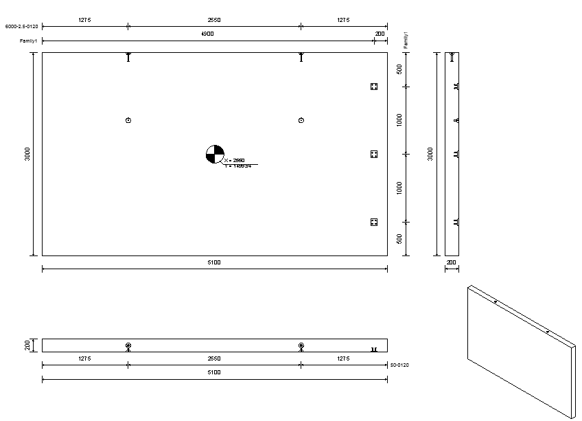
En función del nombre de la subcategoría, las líneas de cota solo deben crearse al visualizar las pletinas de anclaje desde la parte superior (como se muestra en la familia). En el caso del muro de este ejemplo, esto solo se realiza en la vista frontal.


Establezca una subcategoría y el parámetro de visibilidad como en el primer ejemplo.
grupo Segmentación
(Dividir) para dividir el muro.
grupo Conexiones
(Piezas de montaje) para añadir las pletinas de anclaje al montaje.
grupo Fabricación
(Dibujos de detalles) para crear un dibujo de detalles para el montaje.

grupo Fabricación
(Dibujos de detalles) para crear un dibujo de detalles para el montaje.

Las extensiones de las pletinas de anclaje se acotan en todas las vistas (mediante una cota, ya que siempre se trata de la misma familia).
En las vistas superior y frontal, solo se acota la pletina (sin los anclajes), ya que en estas vistas solo se muestran las caras redondas de los anclajes, por lo que no hay referencias a la cota.


grupo Segmentación
(Dividir) para dividir el muro.
grupo Fabricación
(Dibujos de detalles) para crear un dibujo de detalles para el montaje.
