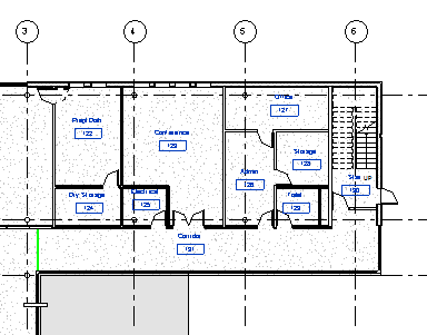
Etiquetas de habitación

Aunque sean componentes independientes de Revit LT, las habitaciones y las etiquetas de habitaciones están relacionadas.

Las habitaciones (así como los muros y las puertas) son elementos de modelo en Revit LT. Las etiquetas de habitación son elementos de anotación que pueden añadirse y mostrarse en vistas de plano y vistas en sección. Las etiquetas de habitación pueden mostrar valores para parámetros relacionados, tales como número de habitación, nombre de habitación, área calculada y volumen.