Una vista de detalle es una vista del modelo que, en otras vistas, aparece como llamada o sección. Esta clase de vista suele representar el modelo a escalas de detalle más precisas que la vista principal.
Una vista de detalle se puede crear como sección o llamada. Cuando se crea como llamada, el detalle puede tener asignadas anotaciones de sección y de llamada. Es decir, una vista de detalle como llamada también puede mostrar una sección en las vistas que intersequen las extensiones de vista de llamada. Por ejemplo, puede usar una llamada para crear una vista de detalle de una intersección de muros. Esta misma llamada puede aparecer como vista en sección en la vista en sección de edificio global.
La visibilidad de una etiqueta de vista de detalle depende de la escala de la vista principal, y de si el contorno de recorte de la vista de detalle interseca o se halla totalmente dentro del de la vista de origen. El parámetro de vista de detalle Ocultar en escalas con menos detalle que establece una escala en la cual los detalles se muestran u ocultan en otras vistas. Por ejemplo, si una etiqueta de detalle se define para ocultarse a escalas con menos detalle que 1/4”=1’0”, una vista cuya escala se defina en 1/8" = 1'-0" no aparecerá en la etiqueta de detalle.
Todas las vistas de detalle, tanto de llamada como en sección, aparecen en el Navegador de proyectos como vista de detalle.
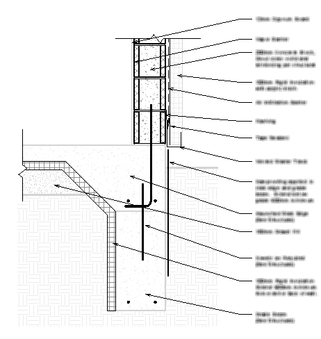
La siguiente ilustración muestra un ejemplo de un detalle de sección de muro con geometría de modelo como nivel subyacente (en tramado) y componentes de detalle 2D adicionales dibujados en los elementos de modelo.
