En este ejercicio, añadirá cotas al modelo de construcción para acotar el perímetro del edificio principal.
|
Categoría
|
Usuarios nuevos
|
|
Duración
|
15 minutos
|
|
Archivos de aprendizaje utilizados
|
GSG_11_dimensions.rvt
|
|
Antes de comenzar, descargue el archivo GSG_11_dimensions.rvt. Descargue este archivo zip (si aún no ha descargado los archivos de ejercicios de los aprendizajes).
Objetivos
- Acotar la anchura del edificio.
- Utilizar la opción de rejillas intersecantes con una cota alineada para incluir automáticamente intersecciones de rejilla al acotar muros exteriores.
- Utilizar la opción Huecos con una cota alineada para incluir automáticamente huecos de ventana al acotar el muro exterior.
Ver el vídeo
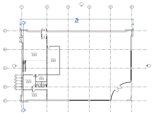
Adición de cotas
- Abra el proyecto GSG_11_dimensions.rvt.
- Compruebe que el plano de planta 01 - Planta de tienda esté abierto.
- Haga clic en la ficha Anotar
grupo Cota
(Alineada).
- En la barra de opciones, seleccione Caras de muro y, en Seleccionar, elija Referencias individuales.
- Acote la anchura del edificio:
- Haga clic en la cara exterior del muro oeste.
- Haga clic en la cara exterior del muro este.
- Mueva el cursor sobre el edificio y haga clic para colocar la cota.
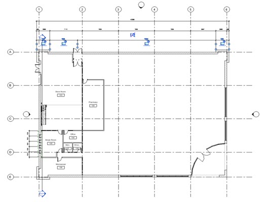
Rejillas de cota
- En la barra de opciones, realice lo siguiente:
- Haga clic en la ficha Anotar
grupo Cota
(Alineada).
- En Seleccionar, elija Muros enteros.
- Haga clic en Opciones.
- En el cuadro de diálogo Opciones de cota automática, seleccione Rejillas intersecantes y haga clic en Aceptar.
- Acote los huecos de ventana y las intersecciones para el muro sur:
- Haga clic en el muro exterior norte incrustado.
- Haga clic en los muros este y oeste.
- Mueva el cursor sobre el edificio y haga clic para colocar la cota.
- Haga clic en Modificar.
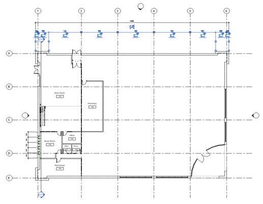
Acotación de huecos
- En la barra de opciones, realice lo siguiente:
- Haga clic en la ficha Anotar
grupo Cota
(Alineada).
- En Seleccionar, elija Muros enteros.
- Haga clic en Opciones.
- En el cuadro de diálogo Opciones de cota automática, seleccione Huecos y haga clic en Aceptar.
- Acote los huecos de ventana y las intersecciones para el muro sur:
- Haga clic en el muro exterior norte incrustado.
- Haga clic en los muros este y oeste.
- Mueva el cursor sobre el edificio y haga clic para colocar la cota.
- Haga clic en Modificar.
Parte 12: adición de notas