Puede crear, anotar y modificar documentación con que comunicar la idea de diseño de un proyecto a los integrantes del equipo y también a clientes, consultores y contratistas.
Vistas de proyecto, tablas de planificación y proceso por fases de un proyecto
Vídeo: Crear una vista en perspectiva.
Coloque una cámara en la vista en perspectiva y ajuste la profundidad de la vista, el contorno y el ángulo de cámara.
Vídeo: Ajustar una vista en perspectiva
Ajuste una vista en perspectiva después de crearla con uno de los tres métodos disponibles: manipulación directa, utilización de SteeringWheels o uso del modo de vuelo.
Vídeo: Trabajar en una vista en perspectiva
Cuando se trabaja en una vista en perspectiva u ortogonal en 3D, puede añadir y modificar elementos de construcción para desarrollar y refinar el diseño.
Vídeo: Filtrar una tabla de planificación por plano
En este aprendizaje, obtendrá información sobre cómo filtrar elementos de una tabla de planificación en función de las vistas colocadas en el mismo plano que la tabla de planificación.
Vídeo: Calcular totales en una tabla de planificación
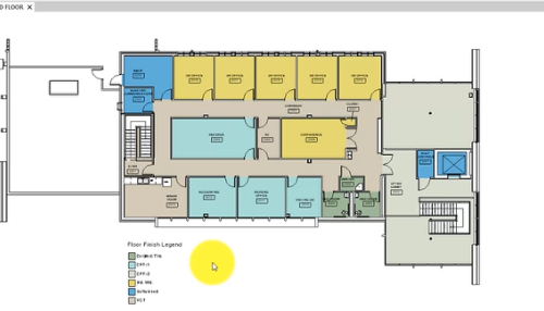
Al crear una tabla de planificación, calcule y visualice las cantidades y los costes totales de los elementos o el coste total general de todos los elementos.
Vídeo: Crear una tabla de planificación incrustada
Utilice tablas de planificación incrustadas para visualizar información sobre los componentes de categorías de circuitos eléctricos, habitaciones, espacios o sistemas de conductos o tuberías.
Vídeo: Combinar parámetros en una tabla de planificación
Al crear o modificar una tabla de planificación, combine dos o más parámetros en una única celda de la tabla de planificación mediante el cuadro de diálogo Propiedades de tabla de planificación.
Vídeo: Crear un bloque de notas
Añada un bloque de notas (tabla de planificación de anotaciones) para crear planos numerados genéricos de notas en un modelo.
Vídeo: Cambiar tamaño de texto
Utilice las propiedades de tipo y la herramienta Texto para cambiar el tamaño del texto de las cotas, las etiquetas y los elementos.
Vídeo: Crear un detalle repetido
Utilice la herramienta Componente de detalle repetido para crear y colocar varios ejemplares de elemento en un modelo.
Vídeo: Crear y usar listas de planos
Utilice listas de planos para planificar los planos del proyecto y rellenar previamente los planos de la lista como marcadores de posición.
Vídeo: Exportar una animación de recorrido
Para presentar el modelo a clientes o miembros del equipo, exporte un recorrido a un vídeo (archivo AVI) o una serie de imágenes.
Vídeo: Controlar las líneas ocultas
Utilice la herramienta Mostrar líneas ocultas y los parámetros de vista para controlar las líneas ocultas en las vistas del modelo.
Vídeo: Indicaciones de profundidad
Cree el efecto de profundidad fundiendo los objetos en el color de fondo al aumentar la distancia respecto al observador.
Vídeo: Líneas de croquis
Utilice líneas de croquis para proporcionar a su trabajo un aspecto de boceto dibujado a mano.