Exercice B1 : copie d'entités raster à l'aide des objets région

Cet exercice permet d'introduire les paramètres REM. Vous allez également découvrir comment définir des objets région REM et copier des entités raster d'une image vers une autre.

Vous pouvez définir des objets région dans des images à deux tons, en gamme de gris et en couleur.

Dans cet exercice, vous allez travailler sur un dessin contenant deux images à deux tons numérisées à partir de dessins de pièces mécaniques :

Vous allez utiliser des commandes REM pour sélectionner des entités dans chaque image, puis copier ces entités vers une image vide déjà présente dans le dessin. Dans des exercices ultérieurs, vous allez modifier ces entités à l'aide de commandes REM.

Exercices connexes

Avant de réaliser cet exercice, assurez-vous que les options du jeu d’outils AutoCAD Raster Design sont définies comme indiqué dans l'exercice Exercice A1 : définition des options du jeu d’outils AutoCAD Raster Design.

Exercice

  1. Dans le dossier ..\Program Files\Autodesk\ApplicationPlugins\RasterDesign2025.Bundle\Contents\Tutorials\Tutorial3, ouvrez le dessin REM_02.dwg.

    Vérification des paramètres REM

  2. Pour afficher la boîte de dialogue Options de Raster Design, sur le ruban, cliquez sur l'onglet Outils Raster groupe de fonctions REM Outil de lancement de la boîte de dialogue ().
  3. Cliquez sur l'onglet REM, puis vérifiez que la couleur définie pour les objets REM est le rouge.
  4. Cliquez sur l'onglet Détection de l'entité raster, puis vérifiez que les paramètres suivants sont définis comme indiqué :
    • La valeur de l'option Longueur max. du saut doit être 10.
    • La case à cocher Utiliser la zone de recherche raster doit être sélectionnée.
    • La valeur de l'option Choisir l'ouverture doit être 4.
    • La valeur de l'option Tolérance flottante doit être 2.
  5. Cliquez sur OK.
  6. Pour afficher la fenêtre d'outils Gestionnaire des images, sur le ruban, cliquez sur l'onglet Outils Raster groupe de fonctions Gérer et afficher Gérer . Sélectionnez sur la vue Insertions d'images.
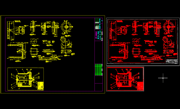
  7. Cliquez sur le signe + en regard de REM_02.dwg, cliquez sur Mech_02a avec le bouton droit de la souris, puis sélectionnez Zoom pour voir l'image représentant les 13 dessins de détails ci-dessous.

    Création d'un objet région polygonale

  8. Sur le ruban, cliquez sur l'onglet Outils Raster groupe de fonctions REM menu déroulant Créer une région Région polygonale.
  9. Tracez un polygone qui inclut tous les dessins de détail et leurs annotations, ainsi qu'une partie du cartouche dans l'angle inférieur droit, puis appuyez sur la touche ENTREE pour terminer le traitement.

    Le polygone et toutes les entités qu'il contient s'affichent à présent en rouge, indiquant qu'ils ont été capturés comme éléments de l'objet région REM.

    Affinage de l'objet région

  10. Cliquez sur le contour du polygone pour sélectionner l'objet de région REM.
  11. Cliquez à l'aide du bouton droit de la souris et choisissez Mode Affinage. Seuls les contours de la région sont en surbrillance.
  12. Effectuez un panoramique et un zoom sur l'angle inférieur droit de l'image.
  13. Sélectionnez le contour de la région. Dans le cartouche, sélectionnez la poignée du milieu et faites-la glisser pour exclure le cartouche de l'objet région.

    L'exemple suivant montre comment l'image doit apparaître une fois que l'objet région a été affiné afin d'exclure le cartouche.

  14. Cliquez à l'aide du bouton droit de la souris et choisissez Mode Affinage. Le Mode Affinage est à présent désactivé.

    Copie de l'objet région vers l'image vide

  15. Effectuez un zoom arrière pour afficher tout le dessin.
  16. Utilisez la commande COPIER pour copier l'objet région dans l'angle supérieur gauche de l'image vide.

    Création d'un objet région rectangulaire

  17. Dans le Gestionnaire des images, sélectionnez Mech_02b, puis cliquez avec le bouton droit de la souris et choisissez Zoom pour voir cette image.
  18. Sur le ruban, cliquez sur l'onglet Outils Raster groupe de fonctions REM menu déroulant Créer une région Région rectangulaire .
  19. Dessinez un rectangle contenant toute l'image : toutes les entités, le cartouche et la bordure.

    Le rectangle et toutes les entités qu'il contient s'affichent à présent en rouge, indiquant qu'ils ont été intégrés comme élément de l'objet région REM.

    Copie de l'objet région

  20. Effectuez un zoom sur l'étendue du dessin.
  21. Utilisez la commande COPIER pour copier l'objet région dans l'angle inférieur gauche de l'image contenant l'autre objet région.

    Fusion des objets région avec l'image

  22. Sélectionnez deux objets région, cliquez à l'aide du bouton droit de la souris, puis choisissez Fusionner avec l'image raster.

    Une fois que vous avez fusionné les objets région avec l'image, ils n'apparaissent plus en rouge parce qu'ils ne sont plus des objets région. Cependant, les objets des images d'origine restent définis en tant qu'objets région.

  23. Cliquez avec le bouton droit de la souris, puis choisissez REM Tout effacer dans le menu contextuel.

    Les objets région REM ne sont plus définis dans les images d'origine. A ce point d'un projet réel, vous pouvez enregistrer la nouvelle image (Mech_new_02) et dissocier les images source d'origine par rapport au dessin.

  24. Fermez le dessin sans enregistrer les modifications.