Exercice LiveView : effacement et découpage d'une image

Dans cet exercice, vous allez effacer de petites entités d'une image et effectuer un découpage autour d'une autre entité.

Remarque : Les exemples de fichiers du guide de mise en route peuvent être téléchargés à partir de l'adresse https://www.autodesk.com/raster_design_getting_started_guide. Téléchargez et extrayez les fichiers d'exemple sur votre poste de travail pour les utiliser dans cet exercice.
Pour effacer et découper les objets
1

Ouvrez le fichier d'exemple LiveView_Rub.dwg.

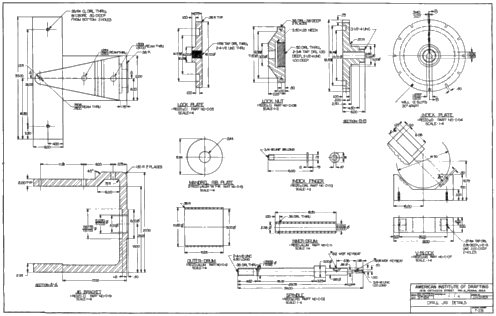
Vous voyez plusieurs entités distinctes dans une image numérisée.

2

Effectuez un zoom avant sur l'affichage afin de voir clairement l'objet Mandrel Rib Plate.

Dans les étapes suivantes, vous allez supprimer cet objet de l'image.

3

Sur le ruban, cliquez sur l'onglet Outils Raster groupe de fonctions Modifier menu déroulant Supprimer Région rectangulaire.

Cliquez et tracez un rectangle autour de l'objet Mandrel Rib Plate et de son cartouche, puis cliquez de nouveau pour effacer la région.

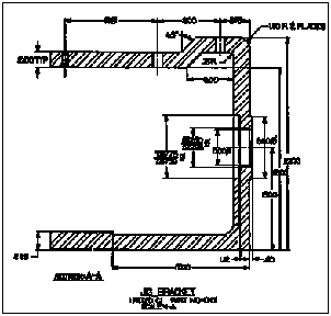
Pour aller plus loin : effacez d'autres objets, à l'exception de l'objet Jig Bracket dans l'angle inférieur gauche. Pour ce faire, choisissez un autre type de région dans le menu déroulant Supprimer.

4

Effectuez un zoom avant sur l'affichage pour voir clairement l'objet Jig Bracket dans l'angle inférieur gauche.

A l'étape suivante, vous allez créer une région de découpage autour de cet objet.

5

Sur le ruban, cliquez sur l'onglet Outils Raster groupe de fonctions Modifier menu déroulant Découpe Région rectangulaire.

Cliquez pour spécifier le premier coin du rectangle, puis spécifiez un angle de rotation égal à zéro pour le rectangle. Tracez un rectangle autour de l'objet Jig Bracket et de son cartouche, puis cliquez de nouveau.

L'ensemble de l'image située en dehors de la région découpée est supprimée. Vous pouvez éventuellement enregistrer cette image de l'objet Jig Bracket sous un nouveau nom.