Cette rubrique décrit certains termes généralement utilisés pour faire référence aux composants du réseau de canalisations.
Termes relatifs aux structures
-
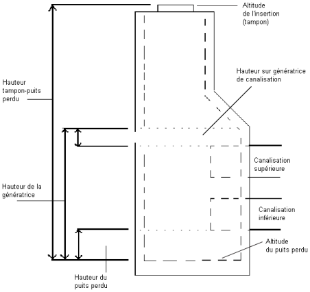
Tampon. L'altitude supérieure d'une structure de bouche d'égout ou de fosse septique (raccordement).
-
Dormant. Le support de la couverture d'une bouche d'égout ou de la grille d'une fosse septique. L'altitude supérieure du dormant, de la couverture et de la grille coïncide généralement avec l'altitude d'insertion (tampon).
-
Couverture. Couverture avec accès par le haut d'une bouche d'égout, utilisée pour l'entretien ou l'inspection de la bouche d'égout. Les couvertures sont généralement de forme circulaire. Toutefois, elles peuvent être de forme triangulaire afin d'éviter qu'elles ne tombent dans la bouche d'égout lorsqu'elles sont retirées. La couverture, habituellement en fonte, est insérée dans le dormant.
-
Grille. Ouverture supérieure d'une fosse septique présentant habituellement de nombreuses ouvertures pour permettre à l'eau de surface de pénétrer dans la structure. La grille, habituellement en fonte, est insérée dans le dormant. Les grilles peuvent être de formes diverses mais sont habituellement circulaires ou carrées.
-
Puits perdu et profondeur du puits perdu. Le puits perdu fait référence à la chambre ou à la zone inférieure à l'intérieur d'un regard de visite, telle qu'une fosse septique. La zone du puits perdu est quelquefois utilisée comme réservoir pour les débris de la fosse. La profondeur du puits perdu fait référence à la distance entre la partie basse de l'intérieur de la structure et le fil d'eau le plus bas de toutes les canalisations qui y sont connectées. La profondeur du puits perdu d'un type spécifique de structure peut varier en fonction des exigences de la conception. Généralement, les bouches d'égout ne présentent pas de profondeur du puits perdu.
L'illustration ci-dessous montre les emplacements des composants sur un regard de visite classique.
Termes relatifs aux canalisations
-
Fil d'eau. Altitude de la partie intérieure basse d'une canalisation. Fait également référence à une ligne d'écoulement.
-
Sommet ou Voûte. Altitude de la partie intérieure haute d'une canalisation.
-
Altitude de la ligne d'axe de la canalisation. Altitude de la ligne d'axe d'une canalisation.
-
Couverture ou profondeur. Fait référence à la profondeur du matériau au-dessus de la partie extérieure la plus haute d'une canalisation.
-
Pente. Lorsque le terme "pente" est utilisé pour faire référence à la pente d'une canalisation, il s'agit d'une mesure de l'inclinaison. Pour les canalisations, la pente est définie par une élévation (ou une inclinaison) sur un tronçon, où l'élévation est une différence d'altitudes le long d'un tronçon de canalisation, mesurée horizontalement. La pente est généralement représentée en pourcentage. À titre d’exemple, une pente de canalisation à 2 % signifie que, pour chaque longueur horizontale de 100 pieds, la canalisation s’abaisse de 2 pieds. Dans Autodesk Civil 3D, la pente peut être représentée de différentes façons dans les boîtes de dialogue et dans les étiquettes du dessin. Une pente positive indique que la canalisation est inclinée vers le bas dans la direction de l’écoulement. Une pente négative est une pente défavorable indiquant que la canalisation est inclinée vers le haut dans la direction de l’écoulement.
