Boite de dialogue Cotation de la vue

Utilisez cette boite de dialogue pour :

Vue — Sélectionnez la vue dans la liste, ou cliquez à l'intérieur de la vue requise dans le dessin.

Dimensions générales — Sélectionnez cette option pour afficher les cotes X et Y sur l'élément dans la vue sélectionnée, si les cotes n'existent pas déjà.

Perçages :

Origine — L'origine est définie à l'origine de la vue par défaut. Si vous changez l'origine, l'origine de la vue se met à jour à la nouvelle position. L'origine est marquée par des lignes d'axe.

Pour changer l'origine :

Entrez les coordonnées X Y Z, ou cliquez sur le bouton Position pour ouvrir la boite de dialogue Position, où vous pouvez utiliser des outils de saisie de position.

Disposition — Vous pouvez choisir la disposition pour le texte des cotes superposées aux positions suivantes :

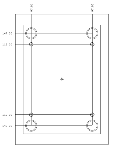
L'exemple suivant d'une vue ci-dessous montre la disposition de la cotation de trous en utilisant l'option de disposition En haut à gauche.

Positionner les cotes sur le côté le plus proche du modèle — Sélectionnez cette option pour positionner le texte de cotation sur le côté de plus proche du centre du trou. Ceci est utile pour les plaques avec des centaines de trous, parce qu'il améliore la clarté du dessin.

Désélectionnez l'option pour positionner toutes les cotes d'un seul côté, la position de la valeur de dimension est spécifiée en sélectionnant En haut à gauche, En bas à droite, En bas à gauche ou En bas à droite.

Direction du trou — Sélectionnez quels trous coter.

Cotes de trous pré-percés — Sélectionnez cette option pour permettre aux plaques avec des trous pré-percés d'être cotées.

Si les cotes sont proches les unes des autres, la ligne de cote est dessinée coudées automatiquement pour éviter les chevauchement.