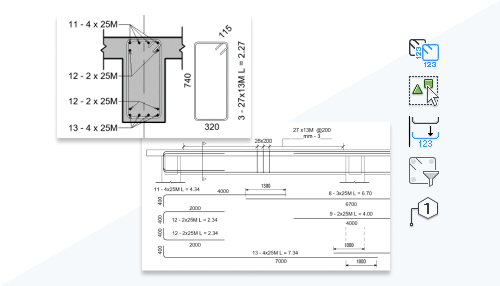
Ajoutez des schémas de façonnage à vos dessins d’armature pour créer des instructions précises de façonnage et d’installation de barres.
Vous pouvez placer des schémas de façonnage dans les vues en plan, en coupe et d’élévation, ou bien à l’intérieur ou à l’extérieur de la zone cadrée de la vue, à l’aide des outils dédiés du ruban. Modifiez les schémas de façonnage d’armature afin de les adapter au mieux à vos besoins en matière de dessin d’armature.

Cette fonctionnalité a été suggérée par les clients sur le forum Ideas et est décrite sur la feuille de route du produit.
Voir Schémas de façonnage d’armature sur les dessins d’armature.