Esercizio pratico: unione di vettori

In questo esercizio si aggiornerà un disegno e si uniranno nuovi dati vettoriali a dati raster già esistenti.

Nota: I file di esempio della Guida introduttiva possono essere scaricati da https://www.autodesk.com/raster_design_getting_started_guide. Scaricare ed estrarre i file di esempio nella workstation per utilizzarli in questo esercizio.
Per unire vettori a dati raster
1

Aprire il file di esempio LiveView_Merge.dwg.

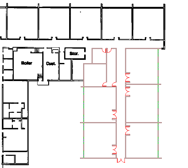
Viene visualizzato il disegno di una scuola. I dati raster bianchi indicano l'edificio originario, mentre i dati vettoriali a colori indicano le aule aggiuntive.

2 Sulla barra multifunzione, fare clic su scheda Strumenti raster gruppo (espanso) Modifica Penne raster per aprire la finestra di dialogo Impostazioni della penna raster.
3

Selezionare il colore della penna rossa, impostarne lo spessore a 1 pixel, quindi fare clic su OK.

Con questa impostazione le porte verranno disegnate con linee raster più sottili rispetto a quelle delle pareti.

4

Sulla barra multifunzione, fare clic su scheda Strumenti raster gruppo (espanso) Modifica Unisci vettore. Selezionare gli oggetti che costituiscono le nuove aule disegnando una finestra intorno ad esse e selezionare la cornice dell'immagine raster, quindi fare clic con il pulsante destro del mouse per terminare la selezione.

Nota: Se non è possibile selezionare la cornice dell'immagine raster, fare clic su scheda Strumenti raster gruppo Gestisci e visualizza Attiva/Disattiva cornici.

Premere INVIO per accettare l'impostazione di default per l'eliminazione dei vettori dopo l'unione. Se viene richiesto di continuare, fare clic su .

I dati vettoriali vengono uniti ai dati raster.