Esercizio pratico: cancellazione e ritaglio di un'immagine

In questo esercizio verranno cancellate da un'immagine alcune entità di dimensioni ridotte mentre un'altra entità verrà ritagliata.

Nota: I file di esempio della Guida introduttiva possono essere scaricati da https://www.autodesk.com/raster_design_getting_started_guide. Scaricare ed estrarre i file di esempio nella workstation per utilizzarli in questo esercizio.
Per cancellare e ritagliare oggetti
1

Aprire il file di esempio LiveView_Rub.dwg.

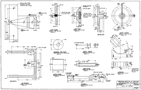
Viene visualizzata un'immagine digitalizzata con vari elementi separati.

2

Ingrandire l'immagine per osservare chiaramente l'oggetto della piastra con la scanalatura del mandrino.

Nei passaggi successivi, questo oggetto verrà rimosso dall'immagine.

3

Sulla barra multifunzione, fare clic su scheda Strumenti raster gruppo Modifica menu a discesa Rimuovi Regione rettangolare.

Fare clic e disegnare un rettangolo attorno alla piastra con scanalatura del mandrino (Mandrel Rib Plate) e al relativo cartiglio, quindi fare nuovamente clic per cancellare la regione.

Ulteriore esplorazione: cancellare altri oggetti, ad eccezione della piastra di supporto (Jig Bracket) nell'angolo inferiore sinistro. A tale scopo, utilizzare alcuni degli altri tipi di regione del menu a discesa Rimuovi.

4

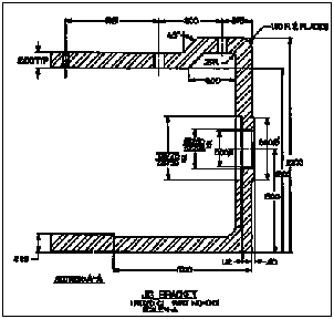
Ingrandire la vista per osservare chiaramente la piastra di supporto (Jig Bracket) nell'angolo inferiore sinistro.

Nel prossimo passaggio si creerà un'area di ritaglio attorno all'oggetto.

5

Sulla barra multifunzione, fare clic su scheda Strumenti raster gruppo Modifica menu a discesa Ritaglia Regione rettangolare.

Fare clic per specificare il primo angolo del rettangolo, quindi specificare un angolo di rotazione pari a zero per il rettangolo. Disegnare un rettangolo attorno alla piastra di supporto (Jig Bracket) e al relativo cartiglio, quindi fare nuovamente clic.

Viene rimossa tutta l'immagine che si trova all'esterno della regione ritagliata. Se lo si desidera, è possibile salvare l'immagine della piastra di supporto (Jig Bracket) con un nuovo nome.