Finestra di dialogo Vista quota

Usare questa finestra di dialogo per:

Vista - Selezionare la vista nell'elenco, oppure fare clic all'interno della vista desiderata nel disegno.

Quote totali - Selezionare questa opzione per visualizzare le quote X e Y nell'elemento nella vista selezionata, se le quote non esistono già.

Fori:

Origine — L'origine è impostata sull'origine della vista per impostazioni di default. Se si modifica l'origine, l'origine della vista viene aggiornata alla nuova posizione. L'origine è contrassegnata da linee centrali.

Per modificare l'origine:

Inserire le coordinate X Y Z, oppure fare clic sul pulsante Posizione per aprire la finestra di dialogo Posizione, in cui è possibile usare gli strumenti di inserimento della posizione.

Layout — È possibile scegliere il layout per il testo delle quote ordinate nelle seguenti posizioni:

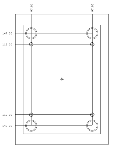
L'esempio di una vista qui di seguito mostra il layout delle quote foro usando l'opzione di layout In alto a sinistra ().

Posiziona quote sul lato più vicino del modello - Selezionare questa opzione per posizione il testo sulla quota sul lato più vicino al centro del foro. Questa operazione è utile per le piastre con centinaia di fori, in quanto migliora la chiarezza del disegno.

Deselezionare questa opzione per posizionare tutte le quote su un lato; la posizione del testo di quota viene specificato selezionando In alto a sinistra, In alto a destra, In basso a sinistra o In basso a destra.

Direzione foro - Selezionare quali fori quotare:

Quota fori pre-forati - Selezionare questa opzione per consentire la quotatura delle piastre con fori pre-forati.

Se le quote sono ravvicinate, le linee direttrici delle quote sono tracciate automaticamente a zig-zag per evitare la sovrapposizione.