In questo esercizio si creeranno una vista di sezione, una vista di dettaglio del muro esterno e un particolare di dettaglio del parapetto.
|
Categoria
|
Nuovi utenti
|
|
Tempo richiesto
|
10 minuti
|
|
File delle esercitazioni utilizzati
|
GSG_10_views.rvt
|
|
Prima di iniziare, scaricare il file GSG_10_views.rvt. Scaricare questo file ZIP (se non sono già stati scaricati i file degli esercizi per le esercitazioni).
Obiettivi
- Creazione di una vista di sezione dell'edificio mediante lo strumento Sezione.
- Modifica dell'area inclusa nella sezione e della visualizzazione dell'estremità di sezione mediante controlli.
- Creazione di una vista di sezione del muro mediante lo strumento Dettaglio.
- Creazione di una vista di dettaglio della sezione di muro mediante lo strumento Dettaglio.
Guarda il video
Creazione di una vista di sezione
- Aprire il progetto GSG_10_views.rvt.
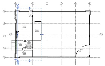
- Nel Browser di progetto, in Piante dei pavimenti, fare doppio clic su 01 - Store Floor.
- Fare clic sulla scheda Vista
gruppo Crea
(Sezione).
- Fare clic all'esterno del muro sud dell'edificio vicino alla griglia 1, spostare il cursore verso l'alto fino a raggiungere il lato esterno dell'edificio sul lato nord e fare clic per posizionare una linea di sezione all'incirca al centro delle scale, come mostrato.
- Fare clic sul controllo di inversione (
) per invertire la sezione in modo che includa il locale del magazzino n. 103.
- Fare clic due volte sul controllo
in alto per scorrere tra le opzioni relative all'estremità finale della sezione e visualizzare l'estremità di sezione in alto e in basso.
- Premere ESC.
- Fare doppio clic sull'estremità di sezione per aprire la vista di sezione.
- Sulla Barra dei controlli della vista, fare clic su
(Nascondi regione di taglio).
Creazione di viste di dettaglio
- Fare clic sulla scheda Vista
gruppo Crea
(Dettaglio).
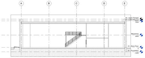
- Nel selettore di tipo, in Sezione, fare clic su Wall Section.
- Per disegnare un dettaglio attorno all'intero muro nord (a sinistra nella vista di sezione) dell'edificio, dalla fondazione al tetto, fare clic per definire l'angolo inferiore sinistro e l'angolo superiore destro del riquadro.
- Selezionare il dettaglio e trascinarne l'estremità mediante l'apposito controllo di trascinamento, in modo che venga visualizzata all'estremità superiore sinistra del dettaglio.
- Premere ESC.
- Fare doppio clic sull'estremità del dettaglio per aprire la vista di dettaglio.
- Nella barra dei controlli della vista, fare clic su
(Nascondi regione di taglio).
- Sulla barra di controllo della vista, modificare il livello di dettaglio in Medio.
- Nel gruppo Crea, fare clic su
(Dettaglio).
- Nel selettore di tipo, in Vista di dettaglio, selezionare Detail.
- Disegnare un dettaglio attorno al parapetto del muro.
- Riposizionare l'estremità del dettaglio in alto a sinistra.
- Fare doppio clic sull'estremità del dettaglio per aprire la vista di dettaglio.
- Sulla Barra dei controlli della vista, fare clic su
(Nascondi regione di taglio).
Parte 11 - Aggiunta di quote