L'Editor di famiglie è una modalità di modifica grafica che consente di creare e modificare le famiglie da includere nei progetti.
Quando si comincia a creare una famiglia, si apre un modello da utilizzare nell'editor. Il modello può comprendere più viste, ad esempio piante e prospetti. L'Editor di famiglie ha lo stesso aspetto dell'ambiente di progetto di Revit LT, ma presenta strumenti differenti. La disponibilità degli strumenti varia a seconda del tipo di famiglia che si sta modificando.
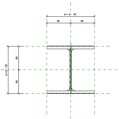
L'immagine di seguito mostra una vista di pianta di una famiglia di pilastri ad ala larga nell'Editor di famiglie. I piani di riferimento indicati con una linea verde tratteggiata vengono utilizzati per vincolare la geometria della famiglia.
