ミニ チュートリアル: イメージの斑点除去

この練習では、斑点を除去して図面をクリーンアップします。

注: スタートアップ ガイドのサンプル ファイルは、https://www.autodesk.com/raster_design_getting_started_guide からダウンロードできます。サンプル ファイルをワークステーションにダウンロードして展開し、この練習で使用してください。
イメージから斑点を除去するには
1

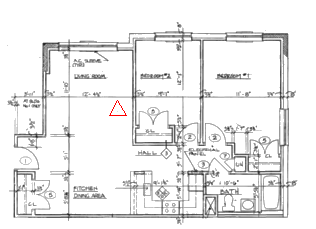
サンプル ファイル LiveView_Clean.dwg を開きます。

この図面には、イメージ内で一番大きな斑点の 1 つを囲んでいる赤いベクトル三角形が含まれています。

2 赤い三角形内の斑点がはっきり見えるように、表示を拡大ズームします。
3 リボンの[ラスター ツール]タブ [編集]パネル [補正]ドロップダウン メニュー [斑点除去]をクリックします。

[Enter]を押して、イメージ全体を処理します。

4 赤い三角形の内側にある斑点をクリックします。

斑点のサイズ(0.025 図面単位または 5 ピクセル)が表示され、削除候補として、このサイズより小さいすべての斑点がハイライト表示されます。

5 画面をイメージの回りに移動して拡大し、斑点を調べます。左上にある「A.C.SLEEVE」のピリオドなど、除去したくない点をクリックして選択解除します。

[Enter]を押して、ハイライト表示した斑点を除去します。

6 左上に、除去されなかった斑点がいくつかあることに注意してください。これは、赤い三角形内で選択した斑点より大きいためです。これらの斑点は手動で除去することができます。