消しゴム(削除)やクロップのコマンドを使用すると、モノクロ イメージ、グレースケール イメージ、およびカラー イメージの指定した領域を削除することができます。削除とクロップでは、イメージが永久的に変更されます。
[編集]パネルをクリックし、[削除]ドロップダウン メニューからオプションの 1 つを選択するか、次のコマンドの 1 つを入力します: iremove、irubarc、irubcirc、irubcircle、irubdiag、irubline、irubpline、irubpoly、または irubrect。
[編集]パネルをクリックし、[クロップ]ドロップダウン メニューからオプションの 1 つを選択するか、次のコマンドの 1 つを入力します: icropcirc、icropdiag、icropline、icroppoly、または icroprect。
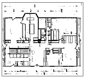
削除とクロップの境界は、円形、長方形、線分、円弧、ポリゴンなど、さまざまな形状から成ります。境界は、1 度に複数のイメージを取り囲むことができます。クロップされた建築平面図のように、イメージをクロップすると、イメージ フレームのサイズが自動的に調整されます。
![]() |
![]() |
![]() |
|
元の建築平面図のイメージ |
建築平面図から削除コマンドで削除された領域 |
クロップされた建築平面図 |
削除とクロップのキーポイントは、次のとおりです。