ビューを寸法付けダイアログ

このダイアログを使用して、次の操作を行います。

ビュー - ドロップダウンリストからビューを選択するか、ドローイング内で希望のビューをクリックします。

全体の寸法 - 既存の寸法が存在しない場合、選択ビューで、アイテム上に X 寸法と Y 寸法を表示します。

原点 - デフォルトで、原点は ビューの原点 に設定されています。原点を変更すると、ビューの原点 が新規位置に変化します。原点は、中心線でマークされています。

次の方法で、原点を変更します。

XYZ 座標を入力するか、または、[ポジション] ボタンをクリックして[ポジション]ダイアログを表示し、位置の入力ツールを使用します。

レイアウト - 座標寸法のテキストレイアウトに、次の位置を選択することができます。

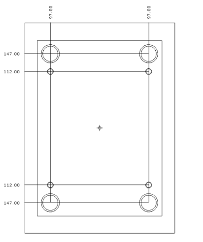
次図のビューでは、孔の寸法レイアウトに 左上 を使用しています。

モデルの最近接側面に寸法配置 - 寸法テキストを、孔の中心に最も近い側面に配置します。ドローイングが明瞭になるため、多数の孔を持つプレートに有用です。

すべての寸法を一方の側に配置するオプションを選択解除します。寸法テキストの位置は、[上部左][上部右][下部左]、または[下部右]を選択して指定します。

孔方向 - 寸法付けする孔を選択します。

プリドリル孔を寸法付け - プリドリル孔のあるプレートを寸法付けできるようにします。

寸法同士が近すぎる場合、オーバーラップを防ぐため、引出し線が自動的に折れ線(ドッグレッグ)で作成されます。