複数鉄筋の注釈

1 つの注釈で複数の鉄筋と鉄筋セットにタグを付けます。

ビデオ: 複数鉄筋の注釈



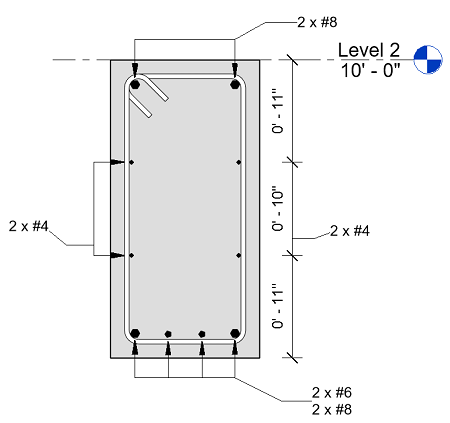
複数鉄筋の注釈を使用すると、位置合わせされた複数の鉄筋を選択して、鉄筋参照間の寸法や鉄筋ホストに対するパラメータ データおよび位置を表示できます。