シート コレクションを使用すると、プロジェクト内のシートを管理および編成できます。
ビューに対するアンダーレイを作成して、モデルの他の平面図ビューからジオメトリを参照します。
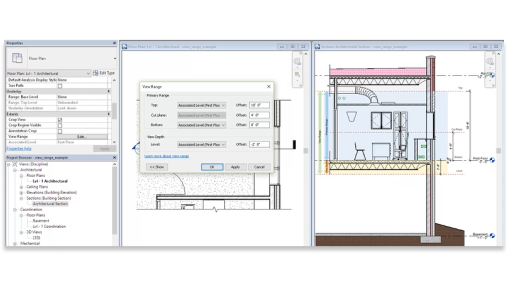
ビュー範囲の平面の位置を調整して、モデルに要素を適切に表示します。
建築モデルの立面図ビューを作成します。
[断面]ツールと[吹き出し]ツールで追加のビューを作成してモデルを詳細化します。
3D ビューでの作業時にレベルを確認して、必要に応じて、ビューのレベル記号を調整します。
パース ビューを作成後、3 つの方法(直接操作、SteeringWheel、フライ モード)の 1 つを使用して調整します。
3D の平行投影ビューまたはパース ビューで作業しながら、建物要素を追加および修正し、設計案を発展させ、微調整を行うことができます。
パース ビューのトリミングを解除して、1 つのビューでのモデルの作業を簡単にすることができます。
切断ボックスを適用して、ビューに表示されるジオメトリを制限します。
凡例ビューを作成することにより、モデル内のグラフィックス規則を伝達します。
作業を合理化し、作業をサポートするために、1 つまたは複数のモニタで開いたモデルのビューを整理します。
SteeringWheels を使用してリアル タイムでモデルをナビゲートします。
シートに配置されたビューを、モデル内の配置されていない別のビューとスワップします。
ビュー リストを作成して、モデルのビューの設定を確認します。
ビュー タイプを作成し、そのタイプを使用して作成された新しいビューにテンプレートを割り当てます。
すべての規則が true と評価される必要があるときに、ビュー フィルタで AND 条件を使用します。
1 つまたは複数の規則が true と評価される必要があるときに、ビュー フィルタで OR 条件を使用します。
フィルタで OR 条件を使用する際に、要素カテゴリから任意のパラメータを選択します。
ネストされた規則セットを使用して、ビュー フィルタの AND 条件と OR 条件を結合します。
ビュー フィルタをビューに適用して、要素の表示とグラフィックスをコントロールします。
オブジェクト スタイル、および表示設定とグラフィックスの上書きを使用して、モデル内での要素の表示方法をコントロールします。
ビュー内に表示される要素をコントロールするには、トリミング領域を使用します。
手書き風の線を使用して作業をすることで、手描きでスケッチした外観が得られます。
オブジェクトがビューアから遠ざかるほど背景色に溶けこむように処理することで、奥行きの効果を生み出します。
[隠線を表示]ツールとビュー パラメータを使用してモデル ビューの隠線をコントロールします。
[要素を変位]ツールを使用してモデルを分解アセンブリ図として表現します。
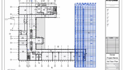
集計表の作成時に、[集計表プロパティ]ダイアログの[フィールド]タブを使用して、集計表に含めるフィールドを選択します。
このチュートリアルでは、プロジェクト集計表のフィールドにフィルタを追加する方法について学習します。
このチュートリアルでは、集計表と同じシートに配置されたビューに基づいて集計表の要素をフィルタする方法について学習します。
集計表の作成時に、要素の量と合計コスト、またはすべての要素の合計コストを計算し、表示します。
家具集計表を作成する際に、タイプ プロパティとインスタンス プロパティを使用して、モデル要素に関連付けられたイメージを含めます。
組み込み型集計表を使用して、部屋、スペース、ダクト システム、配管システム、電気回路カテゴリのコンポーネントに関する情報を表示します。
集計表を作成または修正する場合、[集計表プロパティ]ダイアログを使用して、1 つの集計表セルで 2 つ以上のパラメータを結合します。
注釈リスト(注釈集計表)を追加して、モデルで注釈の一般的な番号付きシートを作成します。
共有パラメータを使用して要素の集計キーを作成します。
マテリアルのタイプ、数量、コストについての情報をレポートするカスタマイズされた集計表を作成します。
集計表パネル テンプレートを管理して、会社の基準やローカル コードに準拠した、カスタマイズされたパネル集計表を作成します。
パネル、パネルに接続されている回路、およびそれらの回路に対応する負荷についての情報を表示する、パネル集計表を作成します。
柱リストのレイアウトを調整して、柱のグループ化、柱へのタグ付け、シートへの柱リストの追加を行います。
柱リスト図の情報(サイズ、接合、マテリアルなど)を作成、修正します。
フェーズ フィルタは、要素の表示設定をコントロールして、プロジェクトの各フェーズについての情報を伝えます。
フェーズ ステータスは、ビューにおけるモデル要素の視覚的な表現をコントロールします。
基本単位と一緒に、設定可能な寸法の変換単位を表示します。
要素の移動または優先設定の作成によって、確定寸法値を変更します。
ビューやシートに注釈を付ける際に、必要に応じて文字の書式を設定します。
文字注記に特殊文字を追加するには、[記号]メニュー、Windows® の文字コード表、またはキー入力文字を使用します。
寸法、タグ、要素文字のサイズを変更するには、タイプ プロパティと[文字]ツールを使用します。
キーノート パラメータを使用して詳細コンポーネント ファミリに注釈を付けます。
キーノート テキスト ファイルのサンプルを確認して、モデルに必要なカテゴリのエントリを追加します。
モデル内の要素タグに表示される情報のタイプを修正します。
鉄筋セットや個別の鉄筋に、1 つの注釈によるタグを付けます。
[繰り返し詳細コンポーネント]ツールを使用し、複数の要素のインスタンスを作成してモデル内に配置します。
線分ベースの詳細コンポーネントを作成すると、線分ベースの詳細要素の始端と終端を選択することができます。
3D 詳細を使用して、モデル内の要素を表示します。
さまざまな種類の情報を提示するために、モデル内でビューの複製を作成します。
ファイルを使用してシステム ファミリおよび 2D 製図ビューをモデルに読み込む方法を説明します。
シートを作成し、シートにビューを追加、配置します。
ガイド グリッドを使用して、シート間で同じ位置にビューを整列します。
ファミリ エディタを使用して、ラベルと改訂テーブルを含むカスタマイズされた図面枠レイアウトを作成します。
ビュー タイトルとビュー パラメータを修正して、カスタマイズしたプロジェクト情報を表示します。
[集計表/数量を修正]タブを使用して、集計表の外観や集計表に表示される情報を修正します。
シート リストを使用して、プロジェクト内のシートを集計し、リスト内のシートをプレースホルダとして事前に設定します。
複数の改訂順番を追跡するために、カスタム番号付けスキームを作成します。
改訂のワークフローを使用して、モデル内の変更を追跡します。
モデルの改訂をプロジェクトごとに番号付けするかシートごとに番号付けするかの選択が、改訂雲マーク タグの番号付けに影響を与えます。
改訂された断面の作図をマークするには、改訂雲マーク注釈を使用します。
IES ファイルを使用して、Revit モデル内の光源の強度とスタイルを定義します。
カラー スキームを、モデル内の部屋のパラメータに基づいて、平面図ビューまたは断面図ビューに追加します。
レンダリング ツールを使用してモデル内に人工照明を設定し調整します。
チーム メンバーやクライアントにモデルを提示するための、ウォークスルー アニメーションを作成および編集します。
クライアントやチーム メンバーにモデルを提示するために、ウォークスルーをビデオ(AVI ファイル)または一連のイメージとして書き出すことができます。
さまざまなタイプのソフトウェアを使用しているチーム メンバーと共同作業ができるよう、DWG ファイルの書き出しオプションをカスタマイズします。
DWG ファイルを書き出すためのカスタマイズされた設定をテンプレート プロジェクト内に保存して、再利用できるようにします。
モデルのビューとシートを PDF ファイルに書き出すには、[PDF 書き出し]を使用します。
プリンタをセットアップし、設定を変更して、ビューやシートを出力します。
複数の要素を 1 つのアセンブリに結合します。このアセンブリは個別に集計、タグ付け、フィルタされます。