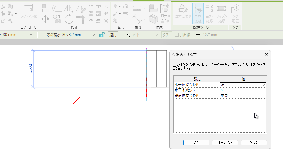
ダクトを位置合わせするには、次の設定を使用します。
このダイアログは、[ダクト]ツールを選択した状態で、
[位置合わせ設定]をクリックしてアクセスします。次の位置合わせのレイアウト オプションを指定することができます。
-
水平位置合わせ: ダクトの中心、左、または右側面を参照として使用して、ダクトの断面エッジを水平方向に合わせます。
-
水平オフセット: 作図領域でクリックした場所と、ダクトが描画されている場所との間でのオフセットを指定します。このオプションは、ビュー内の別のコンポーネントとの間隔を固定してダクトを配置する場合に便利です。
-
鉛直位置合わせ: ダクトの[中央]、[下]、または[上]を参照として使用して、ダクトの断面エッジを垂直方向に合わせます。