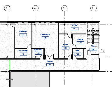
部屋タグ

Revit LT では、部屋と部屋タグはそれぞれ独立した、相互に関連するコンポーネントです。

部屋は、壁やドアと同じく、Revit LT のモデル要素です。部屋タグは、平面図ビューと断面図ビューに追加、表示できる注釈要素です。部屋タグには、部屋番号、部屋名、計算された面積、容積など、関連するパラメータの値を表示できます。