PBARL

Simple Beam Cross-Section Property

Description: Defines the properties of a simple beam element (CBAR entry) by cross-sectional dimensions.

Format:

Example:

Field Definition Type Default
PID Property identification number. Integer > 0 Required
MID Material identification number. See Remark 2. Integer > 0 Required
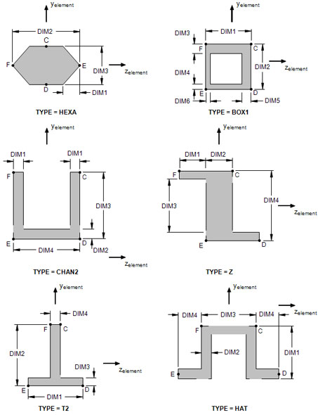
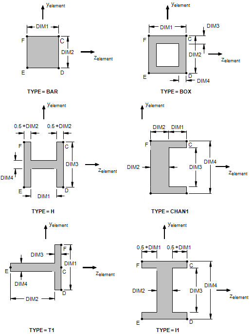
TYPE Cross-section type. Must be one of following character variables: BAR, BOX, BOX1, CHAN, CHAN1, CHAN2, CROSS, H, HAT, HEXA, I, I1, ROD, T, T1, T2, TUBE, or Z. See Remark 4. Character Required
F0 Preload. Real or blank 0.0
DIMi Cross-sectional dimensions. Real > 0.0 Required
NSM Nonstructural mass per unit length. Real or blank 0.0

Remarks:

  1. PID must be unique with respect to all other PBAR and PBARL property identification numbers.
  2. For structural problems, PBARL entries must reference a MAT1 material entry.
  3. A function of this entry is to derive equivalent an equivalent internal PBAR entry. This equivalent entry is given in the database definition section of the Model Results Output File and in the translated Bulk Data Output File.
  4. The cross-sectional properties, shear flexibility factors, and stress recovery points (C, D, E, and F) are computed using the TYPE and DIMi as shown in Figure 1. The origin of element coordinate system is centered at the shear center of the cross-section oriented as shown.

Figure 1a. Definition of Cross-Section Geometry and Stress Recovery Points

Figure 1b. Definition of Cross-Section Geometry and Stress Recovery Points

Figure 1c. Definition of Cross-Section Geometry and Stress Recovery Points

Figure 1d. Definition of Cross-Section Geometry and Stress Recovery Points