Patrz dodatkowe obliczenia dla podpór belkowych, przy użyciu metody krzyżulców i podkładu, w oparciu o francuską normę NF EN 1992-1-1 / NA:2016.
Założenia:


Uwaga dotycząca wyników dla belki
(Zbrojenie rzeczywiste elementów żelbetowych).

Opis zmiennych:
VEd — siła ścinająca w pobliżu podpory.
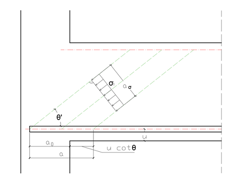
aσ — szerokość krzyżulców.
a — długość podstawy krzyżulca (patrz rysunek powyżej).
σRd.max — wytrzymałość projektowa krzyżulca betonowego.
σ Ed = σ1 — wartość naprężenia ściskającego w krzyżulcu.
FcEd — siła ściskająca przenoszona przez krzyżulec betonowy.
FtEd — siła rozciągająca przenoszona przez stal.
Δ As.req — dodatkowe zbrojenie teoretyczne.
As.prov — całkowite zbrojenie rzeczywiste.
As.prov ≥ Δ As.req
Aby wyświetlić dodatkowe zbrojenie na rysunku, otwórz kartę Wykresy belek i poniżej zestawu tabel wybierz opcję Przełącz na: zbrojenie.
Nastąpi próba utworzenia dodatkowego krzyżulca powyżej już istniejącego, jeśli maksymalne naprężenie ściskające w krzyżulcach głównych zostanie przekroczone (oznaczone na rysunku jako A-B-C-D).

Do skonstruowania tego elementu wymagane jest zaprojektowanie dodatkowego zbrojenia poziomego. Jego głównym celem jest przenoszenie obciążeń rozciągających.
Kąt nowego krzyżulca ściskanego jest oznaczany jako θ', a jego maksymalny wymiar jest określany przez odległość między punktami D i E.
Jeśli wytrzymałość projektowa pierwszego krzyżulca betonowego zostanie przekroczona, wówczas zakłada się, że ten element utrzymuje maksymalną dopuszczalną siłę, a nowe obciążenia są przenoszone przez nowo utworzony krzyżulec.
Dodatkowe założenie: minimalny wymiar krzyżulca musi być równy lub większy niż 5 cm.