Właściwość Dziedzina określa, w jaki sposób elementy charakterystyczne dla dziedziny są wyświetlane w widoku.
Właściwość Dziedzina służy do kontrolowania następujących zachowań:
Właściwość Dziedzina ma wpływ na widoki, w zależności od tego, czy wykorzystywany jest pojedynczy model, który zawiera wiele dziedzin, czy dany model łączy się z innymi modelami specyficznymi dla dziedziny.
Można także użyć tej właściwości do organizowania widoków w Przeglądarce projektu. Zobacz Organizowanie widoków w Przeglądarce projektu.
Aby ustawić właściwość Dziedzina dla widoku, wybierz nazwę widoku w Przeglądarce projektu lub otwórz widok. Właściwość Dziedzina jest dostępna w sekcji Grafika na palecie Właściwości. Wybierz wartość z listy.
Poniższe przykłady są oparte na modelu, którego rzut przekroju poziomu 1 wygląda następująco. W rzucie przekroju zielona strzałka wskazuje cały zakres widoku dla odpowiadających widoków planu. Niebieska strzałka wskazuje pierwotny zakres widoku, który został rozszerzony powyżej sufitu w przestrzeń nadsufitową i poniżej poziomu 1. Pomarańczowa strzałka wskazuje głębokość widoku. (Zobacz temat Informacje o zakresie widoku). Na poniższych przykładowych rzutach Poziom szczegółowości jest ustawiony na wysokim poziomie, tak aby elementy mechaniczne, elektryczne i rury były wyświetlane pełniej w celach demonstracyjnych.

W razie potrzeby można pobrać model, aby lepiej zrozumieć, w jaki sposób właściwość Dziedzina wpływa na widoki: view_discipline_example.rvt
Nowy widok utworzony w oparciu o istniejący widok dziedziczy dziedziny widoku pierwotnego. Ta reguła dotyczy widoków odwołań, przekrojów, rzędnych i widoków powielanych.
Przykładowo otwierany jest rzut konstrukcyjny (rzut, w którym właściwość Dziedzina jest ustawiona na Konstrukcje) i używane jest narzędzie Przekrój, aby utworzyć przekrój rzutu. Właściwość Dziedzina nowego przekroju jest również ustawiona na Konstrukcje.
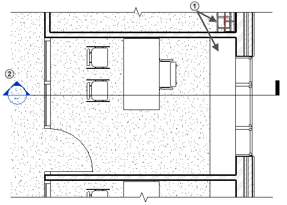
Oznaczenia widoków (symbole używane do wskazywania przekrojów, rzędnych i odwołań) wyświetlane są w widoku tylko wtedy, gdy dziedzina bieżącego widoku odpowiada dziedzinie widoków docelowych. Zobacz przykłady poniżej.
Jeśli właściwość Dziedzina jest ustawiona na Architektura:
Na przykład w widoku wyświetlane są słupy architektoniczne, słupy konstrukcyjne oraz elementy mechaniczne, elektryczne i rury.
Przykłady: w następującym rzucie architektonicznym:
Po jednej stronie ściany odsłonięte są drabinki kablowe. Po drugiej stronie ściany drabinki kablowe są przysłonięte otuliną architektoniczną.
Wyświetlane jest oznaczenie dla przekroju, w którym właściwość Dziedzina jest ustawiona na Architektura. Rzut nie wyświetla oznaczeń dla widoków przypisanych do innych dziedzin.
Jeśli właściwość Dziedzina jest ustawiona na Konstrukcje:
Na przykład w widoku wyświetlane są słupy architektoniczne, słupy konstrukcyjne oraz elementy mechaniczne, elektryczne i rury.
Przykłady: w następującym rzucie konstrukcyjnym:
Ściany nienośne nie są wyświetlane. (Porównaj z powyższym rzutem architektonicznym.)
Wyświetlane jest oznaczenie dla przekroju, w którym właściwość Dziedzina jest ustawiona na Konstrukcje. Rzut nie wyświetla oznaczeń dla widoków przypisanych do innych dziedzin.
Ukryte linie są wyświetlane, aby pokazać elementy ram konstrukcyjnych pod podłogą, ponieważ zakres widoku rzutu rozciąga się poniżej poziomu 1.

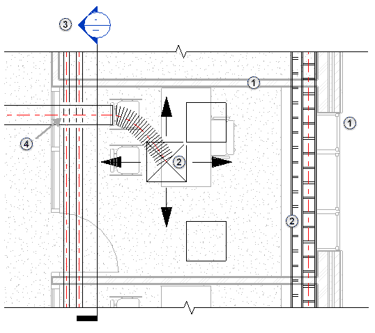
Jeśli właściwość Dziedzina jest ustawiona na Mechanika, Elektryczność lub Hydraulika:
Przykłady: w następującym rzucie mechanicznym:
Elementy architektoniczne i konstrukcyjne (ściany, drzwi, okna, meble) są wyświetlane w półcieniach na podstawie zakresu widoku. Elementy sufitu nie są wyświetlane w widoku.
Elementy mechaniczne, elektryczne i rury wyświetlane są jako zdefiniowane w oknie Style obiektów. Te elementy nakładają się na inne elementy, niezależnie od ich rzeczywistego położenia pionowego w modelu.
Wyświetlane jest oznaczenie dla przekroju, w którym właściwość Dziedzina jest ustawiona na Mechanika. Rzut nie wyświetla oznaczeń dla widoków przypisanych do innych dziedzin.
W widoku wyświetlane są ukryte linie dla elementów mechanicznych, elektrycznych i rur.

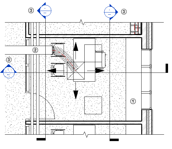
Jeśli właściwość Dziedzina jest ustawiona na Współrzędne:
Na przykład w widoku wyświetlane są słupy architektoniczne, słupy konstrukcyjne oraz elementy mechaniczne, elektryczne i rury.
Niektóre elementy mechaniczne, elektryczne i rury w tym zakresie widoku są wyświetlane, niezależnie od tego, czy przecina je płaszczyzna cięcia.
Ponadto elementy mechaniczne, elektryczne i rury znajdujące się powyżej płaszczyzny cięcia są rysowane na innych elementach. Kolejność rysowania tych elementów zależy od względnej wysokości od poziomu widoku. Jeśli te elementy występują poniżej płaszczyzny cięcia, są one rysowane w kolejności z uwzględnieniem odległości od płaszczyzny cięcia.
Przykłady: w następującym rzucie współrzędnych:
Elementy wszystkich dziedzin są wyświetlane w widoku zgodnie z zakresem widoku.
Wyświetlane są elementy mechaniczne, elektryczne i rury nakładające się na inne elementy zgodnie z zasadami opisanymi powyżej.
Oznaczenia są wyświetlane w przekrojach dla wszystkich dziedzin.
