Nagranie wideo: Dokumentowanie i prezentacja projektu
Można tworzyć, opisywać i poprawiać dokumentację projektu w celu przekazywania założeń projektowych członkom zespołu, klientom, konsultantom i wykonawcom.
Nagranie wideo: Dopasowywanie widoku perspektywicznego
Po utworzeniu widoku perspektywicznego można dopasować go za pomocą jednej z trzech metod: manipulacji bezpośredniej, narzędzia SteeringWheel lub trybu przelotu.
Nagranie wideo: Praca w widoku perspektywicznym
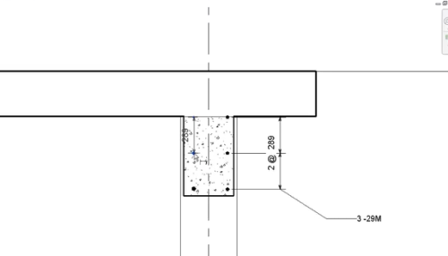
Podczas pracy w widoku prostopadłym lub perspektywicznym 3D można dodawać i modyfikować elementy konstrukcyjne w celu opracowywania i udoskonalenia projektu.
Film: Wybór pól do zestawienia
Podczas tworzenia zestawienia można wybrać pola do umieszczenia, używając karty Pola okna dialogowego Właściwości zestawienia.
Film: Filtrowanie zestawienia według arkusza
W tym ćwiczeniu zostanie przedstawiony sposób filtrowania elementów w zestawieniu na podstawie widoków umieszczonych na tym samym arkuszu co zestawienie.
Nagranie wideo: Obliczanie sum w zestawieniu
Podczas tworzenia zestawienia można obliczyć i wyświetlić ilości oraz koszty całkowite elementów, a także sumę kosztów wszystkich elementów.
Nagranie wideo: Tworzenie zagnieżdżonego zestawienia
Zagnieżdżone zestawienia służą do wyświetlania informacji o komponentach w kategoriach pomieszczeń, przestrzeni, systemów kanałów, systemów rur lub obwodów elektrycznych.
Film: Łączenie parametrów w zestawieniu
Podczas tworzenia lub modyfikowania zestawienia można połączyć dwa lub więcej parametrów w jednej komórce zestawienia, używając okna dialogowego Właściwości zestawienia.
Nagranie wideo: Eksportowanie animacji
Aby pokazać model klientom lub członkom zespołu, można wyeksportować animację do pliku wideo (pliku AVI) lub do serii obrazów.