W tym ćwiczeniu, pracując na różnych poziomach, dodasz do projektu ściany zewnętrzne, ściany wewnętrzne i korytarz.
|
Kategoria
|
Nowi użytkownicy
|
|
Wymagany czas
|
15 minut
|
|
Używane pliki ćwiczeniowe
|
GSG_02_Create_Walls.rvt
|
|
Przed rozpoczęciem pobierz plik danych GSG_02_Create_Walls.rvt. Pobierz ten plik ZIP (jeśli jeszcze nie pobrano plików ćwiczeń do ćwiczeń).
Cele
- Dodaj ściany zewnętrzne, rysując je przy użyciu wybranych punktów.
- Dodaj ściany wewnętrzne na niższym poziomie za pomocą narzędzia Ściana.
- Użyj narzędzi Przytnij/Wydłuż w celu utworzenia otworu dla korytarza.
Obejrzyj nagranie wideo
Modyfikowanie ścian zewnętrznych
- W widoku 3D wybierz ściany na narożnikach budynku. Użyj wyboru okna zawierającego i przytrzymaj klawisz CTRL, aby dodać ściany do wyboru.
- Na palecie Właściwości w polu Wiązanie góry wybierz pozycję 04 — Parapet górny, a następnie kliknij przycisk Zastosuj.
- Aby usunąć zaznaczenie ścian, naciśnij klawisz ESC.
- Wybierz dwie ściany w prawym przednim narożniku budynku. Na palecie Właściwości w polu Odsunięcie podstawy ustaw wartość 4250 mm.
- W polu Wybór typu zmień typ ściany na Zewnętrzne — tynk na cegle na pustaku przy wejściu.
Dodawanie ścian wewnętrznych
- W Przeglądarce projektu w obszarze Rzuty kliknij dwukrotnie pozycję 01 — Kondygnacja sklepu.
- Kliknij kolejno kartę Architektura
panel Zbuduj
(Ściana).
- W polu Wybór typu wybierz pozycję Wewnętrzne — Przegroda 138 mm (1 godzina).
- Na pasku opcji:
- W polu Wysokość wybierz opcję 03 — Parapet dolny.
- W polu Linia położenia wybierz opcję Oś ściany.
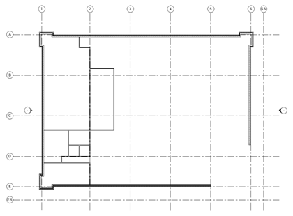
- Korzystając z poniższego rysunku jako odniesienia, ustal położenie dodatkowych ścian w celu utworzenia pomieszczeń:
- Dokładne umieszczenie elementów nie jest konieczne.
- Podczas układania ścian może być przydatne włączenie lub wyłączenie opcji Łańcuch. Pozwala ona wstawić szereg kolejnych ścian. Kiedy opcja Łańcuch jest wyłączona, należy określić oba punkty końcowe obu ścian. Warto wypróbować oba ustawienia.
- Zmień ściany, aby utworzyć korytarz:
- Kliknij przycisk
(Zmień), aby zakończyć wykonywanie polecenia.
Część 3: Tworzenie terenu i płyty budynku