Exemplos de dimensionamento de peças de montagem nos desenhos de fabricação pré-moldados

Revise exemplos de fluxo de trabalho diferentes do dimensionamento de peças de montagem nas vistas de desenho de fabricação pré-moldado.

Dimensionamento de peças de montagem em uma linha de cota

As cotas de todas as peças de montagem da mesma família serão colocadas em uma linha se as peças de montagem forem colocadas no mesmo lado do hospedeiro. A referência para essa colocação é o centro do elemento. Todas as peças de montagem com o mesmo nome de família que estão na parte superior do centro do hospedeiro serão dimensionadas na parte superior do elemento. As peças de montagem abaixo do centro serão dimensionadas abaixo do elemento. A mesma regra se aplica a linhas de cota verticais. Os pontos de cota nas extensões do hospedeiro são adicionados à linha de cota, além dos pontos de cota das peças de montagem (um ponto à esquerda e à direita ou superior e inferior).

Exemplo: Dimensionar o centro das placas de âncora nas duas direções, em uma vista superior

  1. Abra a família de placas de âncora em: Libraries\US Metric\Structural Connections\Mounting Parts\Fastening Plates\M_Plate with Anchors.rfa


  2. No Navegador de projetos, alterne para as Plantas de piso, Nível de referência e crie uma linha do modelo horizontal e uma linha do modelo vertical, fazendo a interseção no centro da placa de âncora.


  3. Defina a subcategoria “Cota_superior” e defina-a como a subcategoria para as duas linhas.
  4. Defina o parâmetro da instância da linha de cota Visibilidade e defina as linhas como invisíveis.
  5. Carregue a família de placas de âncora em um projeto e coloque-a em uma parede.


  6. Clique na guia Pré-moldado painel Segmentação (Dividir) para dividir a parede.
  7. Clique na guia Pré-moldado painel Conexões (Peças de montagem) para adicionar as placas de âncora à montagem.
  8. Clique na guia Pré-moldado painel Fabricação (Desenhos de fabricação) para criar um desenho de fabricação para a montagem.
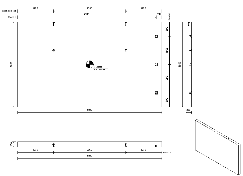
O centro das placas de âncora é dimensionado na vista de cima (em uma linha, já que são da mesma família):


Baseado no nome da subcategoria, as linhas de cota devem ser criadas somente ao visualizar as placas de âncora de cima (conforme visto na família). Para a parede neste exemplo, isso está somente na vista frontal.

Se as placas foram adicionadas à face superior da parede, as famílias serão dimensionadas somente na vista superior do desenho:




Exemplo: Dimensionar a família de placas de âncora usando somente uma linha de cota

  1. Crie apenas uma linha de cota, em vez das duas linhas que fazem interseção no centro. Coloque a linha no centro da família, ortogonal ao plano da placa de âncora.
  2. Defina uma subcategoria e o parâmetro de visibilidade como no primeiro exemplo.

  3. Carregue a família em um projeto e coloque-a em uma parede.
  4. Clique na guia Pré-moldado painel Segmentação (Dividir) para dividir a parede.
  5. Clique na guia Pré-moldado painel Conexões (Peças de montagem) para adicionar as placas de âncora à montagem.
  6. Clique na guia Pré-moldado painel Fabricação (Desenhos de fabricação) para criar um desenho de fabricação para a montagem.


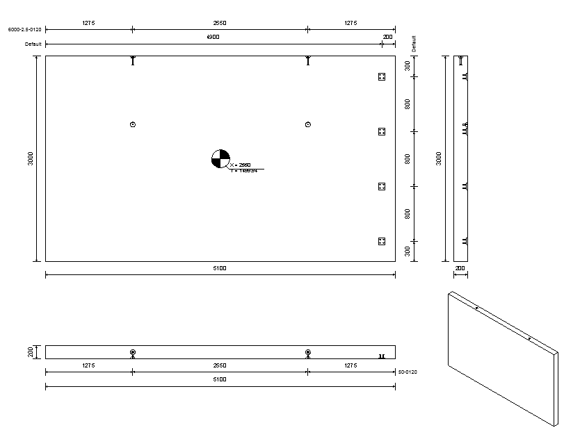
A família será dimensionada da mesma forma que no primeiro exemplo, mas com duas diferenças importantes:
  • No primeiro exemplo, teria sido possível criar somente uma linha conforme a apresentada acima, obtendo cotas somente verticais ou somente horizontais; no segundo exemplo, as duas direções são dimensionadas usando a mesma linha de referência.
  • Se a placa de âncora for adicionada rotacionada no primeiro exemplo, ela não poderá ser dimensionada (as linhas de referência não serão mais paralelas ao eixo da parede); no segundo exemplo, o centro da placa será sempre dimensionado.

Exemplo: Dimensionar a placa de âncora usando o contorno da família

  1. Remova todas linhas de cota da família.
  2. Carregue a família no projeto.
  3. Clique na guia Pré-moldado painel Fabricação (Desenhos de fabricação) para criar um desenho de fabricação para a montagem.


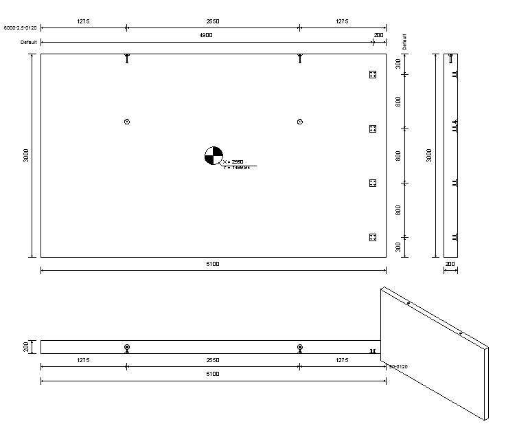
As extensões das placas de âncora são dimensionadas em todas as vistas (usando uma cota, já que é sempre a mesma família).

Nas vistas superior e frontal, somente a placa é dimensionada (sem as âncoras), como nessas vistas somente as faces redondas das âncoras são visíveis, sem oferecer nenhuma referência à cota.

Exemplo: Dimensionar usando famílias aninhadas

  1. Crie uma nova família usando o modelo genérico métrico com base na face.
  2. Carregue as placas de âncora com dimensionamento nas três instâncias da família e do local na face superior do corpo da família.


  3. Nota: O parâmetro da instância Linha de cota de visibilidade precisa ser transmitido para a nova família.
  4. Coloque a nova família na parede.


  5. Clique na guia Pré-moldado painel Segmentação (Dividir) para dividir a parede.
  6. Clique na guia Pré-moldado painel Fabricação (Desenhos de fabricação) para criar um desenho de fabricação para a montagem.
As placas de âncora são dimensionadas apenas na vista frontal: