Coloque detalhes de dobra de barra realista ou esquemática para o vergalhão individual ou conjuntos selecionados, em vistas de planta, corte e elevação, dentro ou fora da região de recorte da vista.
Como no caso de identificadores, o recorte de anotação oculta os detalhes da curvatura. No entanto, ao contrário de outros elementos de tipo de anotação, os detalhes da curvatura podem ser dimensionados.


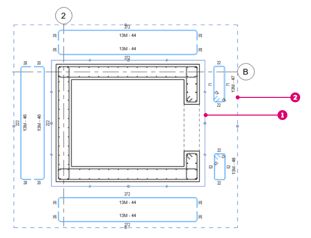
Região de recorte.
Recorte de anotação.
Os detalhes da curvatura são objetos de anotação, parte da categoria Detalhes da curvatura do vergalhão estrutural. Use o menu Estilos de objeto para definir a representação padrão dos detalhes da curvatura no projeto ou substituir por categoria ou por elemento para alterar o estilo visual em uma determinada vista.
É possível formatar a aparência de cotas e texto alterando as propriedades de estilo de cota.