Crie vistas de detalhes para adicionar mais informações de partes específicas do modelo.
Guia Vistapainel Criar (Chamada de detalhe).
Guia Vistapainel Criar (Corte).
Tópicos nesta seção
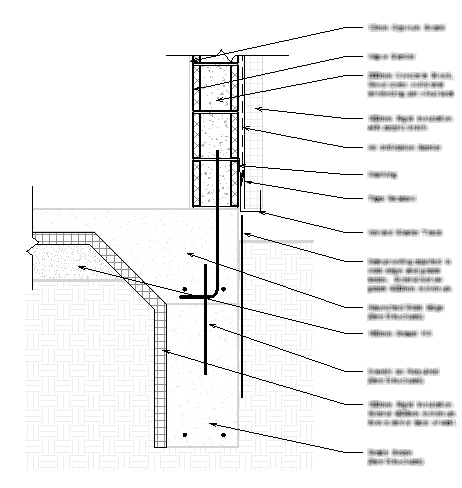
Sobre as vistas de detalhe
Uma vista de detalhe é uma vista do modelo que aparece como uma chamada de detalhe ou corte em outras vistas. Este tipo de vista tipicamente representa o modelo em escalas mais finas de detalhe do que na vista principal.
Sobre como referenciar uma vista de chamada de detalhe
Quando você cria uma chamada de detalhe a partir de uma vista de corte, planta ou elevação, é possível vincular a vista para uma determinada área do modelo de construção.
Criar uma vista de detalhe
É possível criar uma chamada de detalhe de uma vista de planta, corte ou elevação e, em seguida, adicionar componentes detalhe enquanto usa a geometria do modelo como base. Quando você cria um detalhe de chamada de detalhe ou de corte, é possível referenciar outra vista de detalhe ou de desenho no modelo.
Duplicar uma vista de detalhe
Ao duplicar uma vista, você pode determinar se a geometria do modelo e a geometria do detalhe serão copiadas para a nova vista.
Vídeo: Duplicar vistas
Crie duplicatas de vistas em seu modelo para apresentar tipos de informações diferentes.
Vistas duplicadas
Crie duplicatas de vistas em um modelo para apresentar tipos de informações diferentes.
Salvar uma vista em um projeto externo
Você pode salvar uma vista em um projeto externo do Revit LT. Esta operação irá salvar a vista e todos os elementos (elementos do modelo e elementos específicos da vista) visíveis naquela vista em um novo arquivo de projeto.