Формулы расчета допуска

Совет: Для одномерного расчета допусков используйте надстройку Autodesk® Inventor® Tolerance Analysis. Она содержит комплексный набор инструментов, позволяющих получить четкое представление о механической и функциональной пригодности проекта с учетом совокупной вариации размеров.

См. дополнительную информацию в разделе Определение наложений допусков.

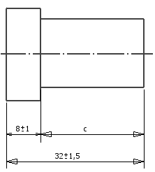
Базовые формулы для замкнутых размерных цепей можно получить из следующей иллюстрации.

a = 32 ± 1.5 мм, b = 8 ± 1 мм

Элементы с положительным и отрицательным знаками

Если элемент с положительным знаком увеличивается, замыкающий цепь элемент также увеличивается. Если элемент с отрицательным знаком увеличивается, замыкающий цепь элемент уменьшается (если остальные элементы цепи остаются постоянными).

Замыкающий элемент:

1. c = a - b

Верхнее предельное значение замыкающего элемента:

2. c max = a max - b min

Нижнее предельное значение замыкающего элемента:

3. c min = a min - b max

Допуск замыкающего элемента (результат вычитания выражения 3 из выражения 2)

4. c max - c min = a max - a min - (b min - b max )

В результате

5. T c = T a + T b

Прим.: Допуск замыкающего элемента равен сумме допусков всех элементов замкнутой размерной цепи

Вообще говоря, допуски в цепи линейных размеров подчиняются следующему выражению.

Аналогично, выражения 2 и 3 можно переписать в обобщенной форме.

Верхнее предельное значение замыкающего элемента является результатом вычитания суммы нижних предельных размеров элементов с отрицательным знаком из суммы верхних предельных размеров элементов с положительным знаком.

Нижнее предельное значение замыкающего элемента является результатом вычитания суммы верхних предельных размеров элементов с отрицательным знаком из суммы нижних предельных размеров элементов с положительным знаком

Номинальный размер замыкающего элемента определяется согласно выражению 1, как в следующей записи.

Верхнее предельное отклонение замыкающего элемента.

Нижнее предельное отклонение замыкающего элемента.