Секущим диапазоном называется набор горизонтальных плоскостей, с помощью которых можно управлять видимостью и представлением объектов на виде в плане.
Видеоролик «Использование секущего диапазона»
Каждый вид плана имеет свойство Секущий диапазон. К горизонтальным плоскостям, определяющим секущий диапазон, относятся следующие плоскости: «Верхняя», «Секущая» и «Нижняя». Верхняя и нижняя секущие плоскости представляют собой самую верхнюю и самую нижнюю части секущего диапазона. Секущая плоскость определяет высоту, на которой конкретные элементы вида отображаются как вырез. Эти три плоскости определяют основной секущий диапазон.
Глубина проецирования — это дополнительная плоскость за пределами основного секущего диапазона. Изменение глубины проецирования позволяет отобразить элементы, расположенные под нижней секущей плоскостью. Глубина проецирования по умолчанию совпадает с уровнем нижней секущей плоскости.
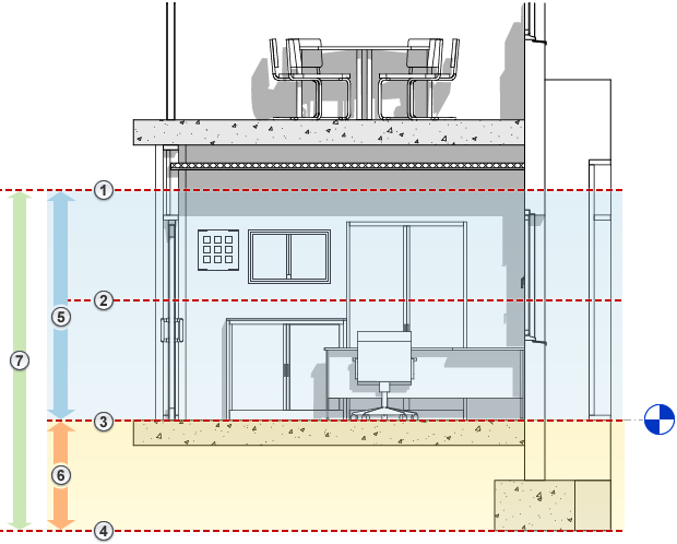
На следующем виде фасада показан секущий диапазон
вида в плане: «Верхняя»
, «Секущая плоскость»
, «Нижняя»
, «Смещение» (снизу)
, «Основной секущий диапазон»
и «Глубина проецирования»
.
На виде в плане справа показан результат для данного секущего диапазона.
|
|
На виде в плане соблюдаются следующие правила Revit касательно представления элементов, которые пересекает секущая плоскость:
К исключениям отображения элементов, пересекаемых секущей плоскостью, относятся следующие:
6 футов (или 2 метра) измеряются от верха ограничивающей рамки до нижней плоскости основного секущего диапазона. Например, при создании стены, возвышающейся на 6 футов над нижней секущей плоскостью, данная стена будет разрезана по секущей плоскости. Если верх стены будет находиться ниже чем на 6 футов, вся стена будет показана в виде проекции, даже там, где она пересекает секущую плоскость. Это происходит в случаях, когда в качестве значения свойства «Зависимость сверху» для стены выбрано «Неприсоединенная». Если свойство зависимости сверху для стены указано как «Присоединенный», то положение секущей плоскости всегда используется для определения, была ли стена рассечена или спроецирована.
Совет. В семействах может присутствовать геометрия, которая пересекает секущую плоскость, что обеспечивает видимость геометрии при ее нахождении над секущей плоскостью.
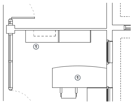
На следующем виде фасада элементы, пересекающие секущую плоскость, выделены синим цветом.
На виде в плане справа показано следующее:
Элементы, создаваемые с применением веса линий разреза (стены, дверь и окно).
Невырезаемые элементы, создаваемые с применением веса линий проекции (шкафы).
|
|
На виде в плане в программе Revit эти элементы строятся с применением веса линий проекции категории элементов.
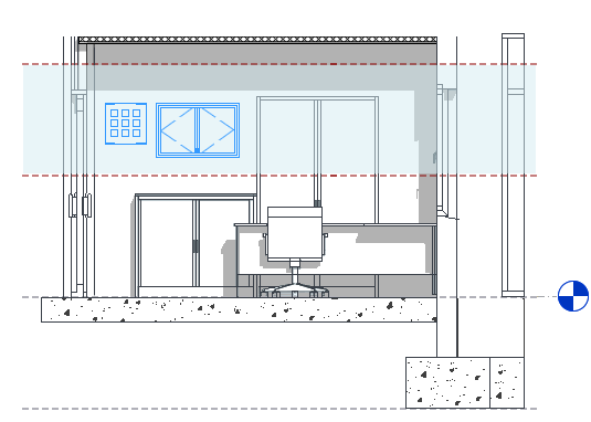
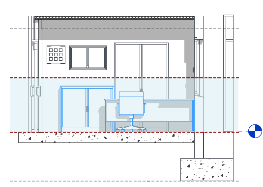
На следующем виде фасада элементы, находящиеся под секущей плоскостью и над нижним пределом секущего диапазона, выделены синим цветом.
На виде в плане справа показано следующее:
Элементы, которые создаются с применением веса линий проекции, поскольку не пересекаются секущей плоскостью (шкаф, стол и стул).
|
|
Элементы в пределах глубины проецирования создаются с применением стиля линий <Вне пределов> вне зависимости от категории элемента.
Исключения: для перекрытий, несущих перекрытий, лестниц и пандусов, находящихся за пределами секущего диапазона, используется скорректированный диапазон, который на 4 фута (примерно 1,22 м) ниже нижней плоскости основного диапазона. В пределах этого скорректированного диапазона элементы создаются с применением веса линий проекции для данной категории. Если же они находятся вне пределов скорректированного диапазона, но в пределах глубины проецирования, эти элементы создаются с применением стиля линий <Вне пределов>.
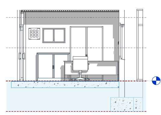
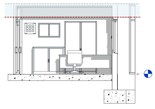
К примеру, на следующем виде фасада элементы, расположенные ниже нижней секущей плоскости и в пределах глубины проецирования, выделены синим цветом.
На виде в плане справа показано следующее:
Элемент (фундамент) в пределах глубины проецирования, построенный с применением стиля линий <Вне пределов>.
Элемент, построенный с применением веса линий проекции для определенной категории и удовлетворяющий условиям исключения.
|
|
Эти элементы отображаются на виде в плане только в том случае, если они относятся к категориям окон, шкафов или типовых моделей. Элементы этих трех категорий строятся с применением веса линий проекции так, как если бы они рассматривались сверху.
К примеру, на следующем виде фасада элементы, расположенные между секущей плоскостью и верхним пределом секущего диапазона, выделены синим цветом.
На виде в плане справа показано следующее:
Настенный шкаф, построенный с применением веса линий проекции. В этом случае семейству шкафов присваивается стиль штриховых линий проецирования.
Настенное бра (из категории осветительных приборов) не отображается на плане, поскольку оно не относится к категориям окон, шкафов или типовых моделей.
|
|
Как и для видов в плане, для планов потолка также имеется параметр «Секущий диапазон», но с некоторыми отличиями.
