Маркировка нескольких арматурных стержней и наборов арматурных стержней при помощи одной аннотации.
Видеоролик «Аннотации для нескольких арматурных стержней»
панель "Марка"
"Несколько арматурных стержней"
("Выровненная аннотация для нескольких арматурных стержней").
панель "Марка"
"Несколько арматурных стержней"
("Линейная аннотация для нескольких арматурных стержней").

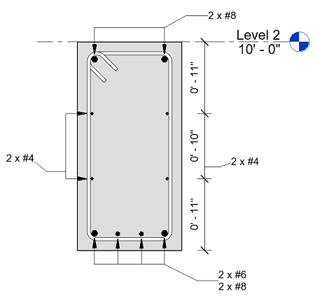
Благодаря аннотациям для нескольких арматурных стержней можно выбрать несколько выровненных стержней и отобразить размеры между их опорными элементами, а также данные параметров и положение относительно основы.