Видеоролики: «Проектирование инженерных систем»

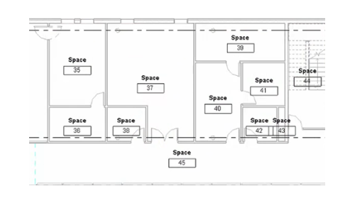
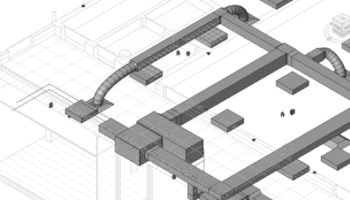
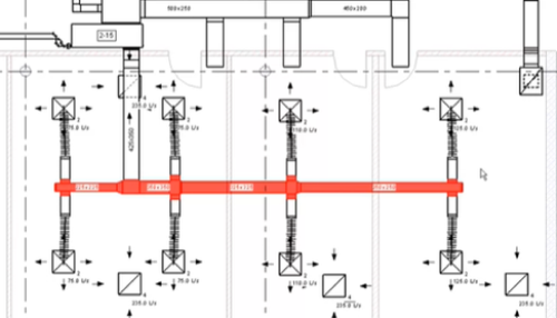
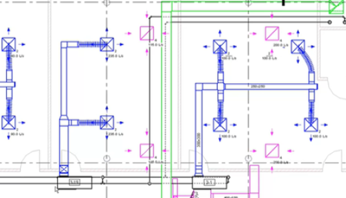
Создание механических, электрических и трубопроводных систем и определение пространств и зон в модели здания.

Инженерные системы здания, Администратор моделей P&ID для Revit

Детализация для производителя в Revit и пространства