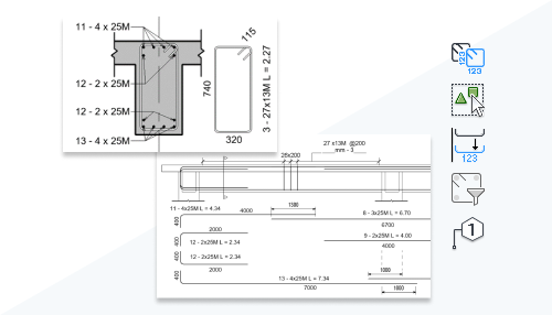
Добавляйте эскизы в чертежи арматуры, чтобы создавать точные инструкции касательно изгибов стержней и монтажа.
С помощью специальных инструментов на ленте можно размещать эскизы на видах в плане, сечениях и видах фасадов внутри или снаружи области обрезки вида. Изменяйте параметры в эскизах арматурных стержней с учетом требований на чертеже арматуры.

Эта функция была предложена пользователями на форуме идей и описывается в стратегическом плане разработки данной программы.
См. раздел Эскизы арматурных стержней на чертежах арматуры.