关于包络处理图案填充

“包络处理图案填充”构件填充由剖面线剖切的所有对象面的并集。“包络处理图案填充”由外部包络处理或内部包络处理线构件定义。此构件是二维剖面特有的构件。

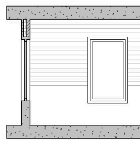
将玻璃从包络处理细节排除的包络处理图案填充

“包络处理图案填充”构件不能由材质构件定义。

注: “包络处理图案填充”构件和“剖面图案填充”构件彼此重叠。这样会导致在相同的位置存在两种不同的图案填充。为了避免冲突,请为“包络处理图案填充”指定实体图案填充,或者不同时使用“包络处理图案填充”和“剖面图案填充”构件。