从二维剖面收缩折绕中排除材质的步骤

使用以下过程可以从二维剖面包络处理中排除已指定特定材质的构件。

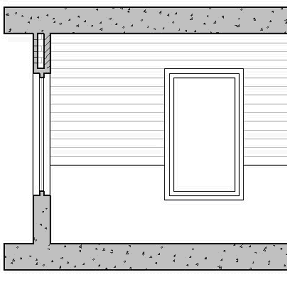
创建二维剖面时,可以显示名为“包络处理”的剖面构件。包络处理是剖面线所剖切的所有对象面的并集,这些对象面合并成一个只有一个填充图案的构件。这是二维剖面常用的视图。

默认情况下,指定了材质的所有部件包含在包络处理中。但是您可能要从包络处理中排除特定材质,如玻璃。

排除了玻璃的二维剖面包络处理

  1. 选择其样式定义组包含您希望修改的样式的构件,然后:
    • 请依次单击 “风管”选项卡 “常规”面板 “编辑系统样式”下拉菜单 “编辑风管样式” .
    • 请依次单击 “管道”选项卡 “常规”面板 “编辑系统样式”下拉菜单 “编辑管道样式” .
    • 请依次单击 “电缆桥架”选项卡 “常规”面板 “编辑系统样式”下拉菜单 “编辑系统样式” .
    • 请依次单击 “电缆桥架管件”选项卡 “常规”面板 “编辑系统样式”下拉菜单 “编辑系统样式” .
    • 依次单击“管道”选项卡 “常规”面板 “编辑系统样式”下拉菜单 “编辑系统样式”.
  2. 在“样式管理器”的左侧窗格中,选择指定给您要从包络处理剖面中排除的材质的系统样式。
  3. 单击“其他”选项卡。
  4. 选择“不画入二维剖面轮廓线内”。
  5. 单击“确定”。