有关详细信息,请参见“定义公差叠加的步骤”。
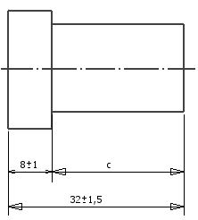
从以下图像中得出适用于闭合线性尺寸链的基本表达式。
![]()
a = 32 ± 1.5 mm, b = 8 ± 1 mm

增加/减少元素
如果同向元素尺寸增大,那么整个封闭环的尺寸也会随之增大。如果反向元素尺寸增大,且尺寸链的其他元素保持不变,那么封闭环的尺寸会减小。
封闭环: | 1. c = a - b |
封闭环的上限尺寸: | 2. c max = a max - b min |
封闭环的下限尺寸: | 3. c min = a min - b max |
封闭环的公差(从表达式 2 中减去表达式 3) | 4. c max - c min = a max - a min - (b min - b max ) |
例如 | 5.T c = T a + T b |
通常情况下,线性链公差满足以下表达式。
![]()
同样,可以采用通用格式编写表达式 2 和表达式 3。
![]()
![]()
封闭环的上限尺寸等于同向元素上限尺寸的和与反向元素下限尺寸的和之间的差值。
封闭环的下限尺寸等于同向元素下限尺寸的和与反向元素上限尺寸的和之间的差值。
封闭环的基本尺寸可以使用表达式 1 表示,如以下表达式所示。
![]()
封闭环的上限偏差。
![]()
封闭环的下限偏差。
![]()