详图视图
创建详图视图将详细信息添加到模型的特定部分。
“视图”选项卡
“创建”面板
(详图索引)
“视图”选项卡
“创建”面板
(剖面)
本节内容
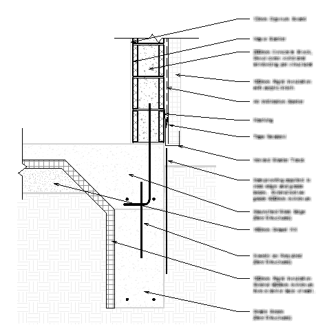
关于详图视图
详图视图是一个在其他视图中显示为详图索引或剖面的模型视图。 这种类型的视图通常表示的模型的详图比例比在父视图更精细。
关于参照详图索引视图
从剖面视图、平面视图或立面视图创建详图索引时,可以将视图链接到建筑模型的某个特定区域。
关于详图视图类型属性
每个详图视图都具有剖面标记、详图索引标记和参照标签类型属性。
视频:创建三维详图
使用三维详图在模型中显示图元。
创建详图视图
可以从平面视图、剖面视图或立面视图创建详图索引,然后使用模型几何图形作为基础,添加详图构件。 创建详图索引详图或剖面详图时,可以参照模型中的其他详图视图或绘图视图。
复制详图视图
复制视图时,您可以决定模型几何图形和详图几何图形是否都复制到新视图中。
视频:复制视图
在模型中创建视图的副本来显示不同类型的信息。
复制视图
在模型中创建视图的副本以显示不同类型的信息。
将视图保存到外部项目
可以将视图保存到外部
Revit
项目。 此操作将把视图及该视图中的所有可见图元(模型图元和视图专有图元)都保存到新的项目文件中。
从保存的详图视图插入详图构件
详图视图实例属性
修改视图的实例属性控制详图视图标记的显示。
父主题:
详图