第 11 部分:添加尺寸标注

在本练习中,您将对建筑模型添加尺寸标注,以对主建筑的迹线进行尺寸标注。

类别 新用户
所需时间 15 分钟
使用的教程文件 GSG_11_dimensions.rvt

在开始之前,请先下载“GSG_11_dimensions.rvt 文件”。下载此 zip 文件(如果尚未下载教程的练习文件。)

目标

观看视频

添加尺寸标注

  1. 打开项目 GSG_11_dimensions.rvt。
  2. 确认已打开“01 - Store Floor”楼层平面。
  3. 依次单击“注释”选项卡 “尺寸标注”面板 (对齐)。
  4. 在“选项栏”上,选择“墙面”,然后选择“单个参照点”作为“拾取”。
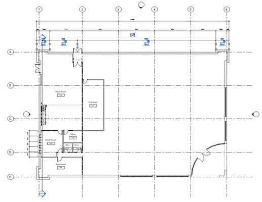
  5. 对建筑宽度进行尺寸标注:
    • 选择西墙的外面。
    • 选择东墙的外部面。
    • 将光标移动到建筑的上方,然后单击以放置尺寸标注。

标注轴网

  1. 在“选项栏”上:
    • 依次单击“注释”选项卡 “尺寸标注”面板 (对齐)。
    • 对于“拾取”,选择“整个墙”。
    • 单击“选项”。
    • 在“自动尺寸标注选项”对话框中,选中“相交轴网”,然后单击“确定”。
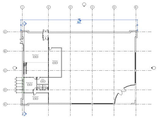
  2. 对南墙的窗洞口和交点进行尺寸标注:
    • 单击插入北外墙。
    • 单击东墙和西墙。
    • 将光标移动到建筑的上方,然后单击以放置尺寸标注。
  3. 单击“修改”。

标注洞口

  1. 在“选项栏”上:
    • 依次单击“注释”选项卡 “尺寸标注”面板 (对齐)。
    • 对于“拾取”,选择“整个墙”。
    • 单击“选项”。
    • 在“自动尺寸标注选项”对话框中,选择“洞口”,然后单击“确定”。
  2. 对南墙的窗洞口和交点进行尺寸标注:
    • 单击插入北外墙。
    • 单击东墙和西墙。
    • 将光标移动到建筑的上方,然后单击以放置尺寸标注。
  3. 单击“修改”。

第 12 部分:添加注释