在本练习中,您将使用外墙的迹线创建平屋顶,以及创建入口处带有悬挑的倾斜屋顶。
|
在开始之前,请先下载“GSG_05_add_roof.rvt”文件。下载此 zip 文件(如果尚未下载教程的练习文件。)
目标
“屋顶”下拉列表
(迹线屋顶)。
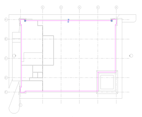
(拾取墙)。

“屋顶”下拉列表
(迹线屋顶)。

(默认三维视图)。
请注意,内墙会穿过屋顶延伸。

“在视图中可见”,以选择所有内墙。
“修改墙”面板
(附着顶部/底部)。
请注意,墙不会再穿过屋顶延伸。
